The Project Gutenberg eBook of A manual of face brick construction, by Anonymous
Title: A manual of face brick construction
Author: Anonymous
Release Date: November 1, 2022 [eBook #69285]
Language: English
Produced by: Tom Cosmas, with assistance from members of the Distributed Proofreaders, compiled from materials provided by The Internet Archive and are placed in the Public Domain
Doorway of Face Brick Cottage, Chicago. Designed by J. Scheller
American Face Brick Association
110 SOUTH DEARBORN STREET
CHICAGO
Copyright 1920 by John H. Black for A. F. B. A.
| Modern Brickmaking | 7 |
| Pre-eminent Merits of Face Brick | 9 |
| Types of Face Brick Wall | 15 |
| Putting in Foundations | 17 |
| Solid Face Brick Construction | 18 |
| Face Brick on Hollow Tile Construction | 25 |
| Face Brick Veneer Construction | 26 |
| Special Uses of Face Brick | 29 |
| Brick Bonds | 33 |
| Mortar Joints | 35 |
| Increasing Fire Protection | 37 |
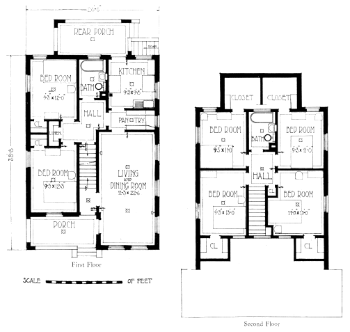
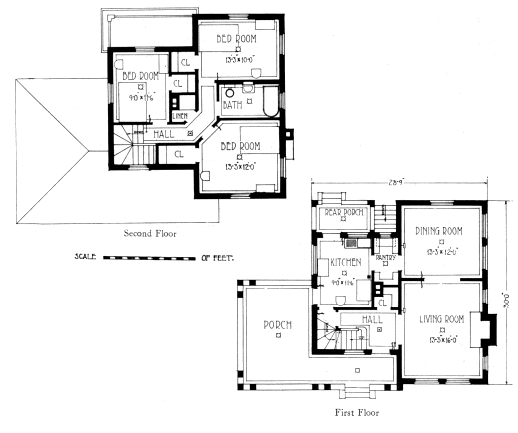
| Face Brick House Designs | 40 |
| Useful Tables and Suggestions | 104 |
| Problems in Estimating Quantities | 107 |
| Glossary of Usual Terms in Bricklaying | 110 |
| Index and List of Illustrations | 112 |
| Members of Association | 114 |
No man has more reason to feel pride and satisfaction in his art than the builder. From the time when men wove together branches of trees or piled up loose stones and mud for shelter to the present day, when they erect huge heaven-soaring structures of steel to house a multitude, the builder has played a most important part in the progress and development of human civilization.
Fundamentals of Building
The old Roman authority on architecture, Vitruvius, long ago laid down the three fundamentals of all good building, viz., firmness, utility, and charm. In working for firmness (strength, durability) and for utility (serviceableness, convenience), the builder, we might say, is an engineer; in seeking to give charm (attractiveness, beauty) to his work, he is an artist. In other words, the builder always has before him structural and artistic problems which, aside from his wit in planning the inner conveniences and serviceableness of the house, depend largely upon the material he chooses to work in. To what extent does this material meet the structural requirements of strength, permanence, durability, and to what extent the artistic requirements of attractiveness, charm, beauty, are the main issues.
Aim of This Book
This book is meant not only to show how perfectly brick, as a building material, meets all of these requirements, but to serve as a Manual for the master carpenter builder in offering various designs and plans of face brick houses, and in pointing out the practical methods of constructing either the solid brick, hollow tile, or veneered wall.
In fact, the book in many ways will be of use to the mason who will doubtless find in it helpful suggestions on the application of his craft to the problems of building.
Before giving briefly the reasons for the use of face brick, a word about the history of brick and its manufacture may be of interest.
The manufacture and use of brick go back to the remotest antiquity, far beyond the earliest recorded history, which is supposed to be about 3,800 B. C, the date of a clay tablet assigned to the age of Sargon of Akkad, founder of the Chaldean dynasty, fully two thousand years before the time of Abraham.
Babylonian Origin
Naturally the use of brick originated where clay, of which they are made, was abundant; and there is every reason to believe that the brick industry had its beginning in the broad alluvial valley of the Euphrates which is the traditional cradle of human civilization. At any rate, according to one authority, good brick have been taken from excavations in old Babylonia, dating back to 4,500 B. C, as good as the day they were made. And the same authority adds that brickmaking was doubtless practiced ten thousand years ago. It was Nature that gave the hint, for the sun hardened the mud along the river bank and cracked it into irregular pieces which the native could utilize, after shaping them to the desired size, for piling up in the walls of his crude hut. It was an easy step in advance to shape the mud beforehand while soft and lay it out in the sun to bake. This produced what we call adobe brick, afterwards greatly improved by mixing chopped reeds or straw with the soft mud before baking. It will be remembered how the Egyptian Pharaoh embittered the slavery of the children of Israel by compelling them to find their own straw for the brick they were required to make. At a very early date the dwellers in the Euphrates valley learned to burn brick, as indicated by the biblical story of the Tower of Babel; and by the time of Nebuchadnezzar, the great Babylonian king (604-562 B. C), not only were well-burned brick made and used extensively, but colored enamels were successfully applied for decorative effects. Considerable remains of this ancient brickwork are still found, although for many centuries the ruined cities of the Mesopotamian plain were used as sources of building material for the more modern cities which have since come into being.
Spread of the Craft in Antiquity
From the Euphrates, brickcraft spread eastward to Persia, India, and China, and westward to Egypt, Greece, and Rome. The Romans, who were the great builders of ancient times, made very extensive use of brick in their immense building operations, wherever good clay could be found. From the numerous monuments of Roman brickwork that still remain, the brick are seen to be of an excellent hard-burned quality, and generally of a large, flat, thin rectangular or triangular form.
Brickwork in the Middle Ages
When the nations of Europe took form out of the ruins of the Roman Empire, they inherited among other arts that of making brick, and subsequently carried it to a higher state of development, especially in countries such as Northern Italy, Southern France, the Netherlands, and Northern Germany, where the absence of good building stone gave a natural impulse to brickmaking. In the great Gothic epoch of the thirteenth and fourteenth centuries, brick enjoyed a wide vogue and was freely and effectively used in the best types of building such as city halls, great churches, palaces, and mansions of the wealthy.
Fig. 1. Man returning after carrying the bricks.
Figs. 7, 9, 11, 13. Digging and mixing the clay or mud.
Fig. 16. Fetching water from tank (h).
Figs. 3, 6. Taskmasters.
Figs. 4, 5. Men carrying bricks.
Figs. 8, 14. Making bricks with a wooden mold, d, k.
At e the bricks (tobi) are said to be made at Thebes.
Foreign captives employed in making bricks at Thebes.
From Wilkinson's Ancient Manners and Customs of the Egyptians
Brickwork in old Persian Tomb at Ardebil
In England
The use of brick in England began with the Romans in the early centuries of our era, but native brickmaking does not appear until well after the days of Magna Charta. In Henry VIII's time, English brickmaking, probably under Flemish influence, was greatly developed. But it was not until the days of Queen Anne and the Georges, in the eighteenth century, that brick building reached its greatest vogue, so much so that brick nearly drove out all other materials. This period accounts for those fine old country houses so representative of substantial comfort and dignity, scattered throughout England, which delight the eye of the traveler today. And ever since that time English builders have maintained a fine sense of the architectural values in sound and beautiful brickwork, as may be seen in many splendid examples of modern construction.
The Use of Brick in America
In America, aside from the adobe construction which the Spanish found in Mexico and Peru, the first brick were brought over from England or Holland. The native industry, however, had an early start in the seventeenth century, so that the Colonial times saw many fine specimens of brick building from New England to Virginia.
In the nineteenth century, up to about 1880, there was no general attempt to use brick to the best advantage. For the most part the brick building of that period was confined to the use of common brick for ordinary construction or for backing stone-faced walls. From that date, however, to the present, a growing taste has demanded and secured artistic effects in the brick wall by the use of specially manufactured face brick which, in a bewildering variety of beautiful color tones and textures, have been sympathetically and artistically treated by our leading architects, as may be seen all over our country.
It is a long cry from the primitive method of mixing and molding brick by hand and drying them in the sun, to the modern technical methods and power machinery used by the American manufacturer. Determined by the kind of material, whether surface clay, fire clay or shale, and the kind of brick wanted, there are three chief methods of manufacture, slop-mold, wire-cut, and dry-press.
By the first method, the clay, in a soft condition, is pressed by the machine into molds which have been flushed with water—hence the term slop-mold—or sprinkled with sand, in which case the brick are called sand-mold. By the second method, the clay or shale is ground and tempered into the consistency of a stiff mud which is forced by an auger machine through a die, in the form of a stiff mud ribbon, having the cross section of a brick. This stiff mud ribbon is carried by a belt to a steel table under a series of piano wires strung on a frame which is revolved by the machine at proper intervals, cutting the clay ribbon into the desired sizes. These stiff mud machines will turn out as many as 100,000 face brick a day, and in some common brick plants they are built for a 250,000 to 300,000 daily output. The dry-press method reduces the clay to a fine granular form which is then, in nearly a dry condition, forced under immense pressure into the proper sized molds.
The brick as they come from the machines are known as "green" and require, except in the case of the best dry-press brick, a certain period of drying before being set in the kilns where, for from five to ten days, depending on the quality of the ware and the general conditions, they are subjected to a process of burning before they are ready to be built into the wall.
Burning the Brick
This process of burning passes through three main stages which require very skillful attention on the part of the burner. First, the water chemically combined with the material must be driven off; then the various impurities of the clay must be burnt out or oxidized; and finally, the ware, except in case of fire clays, must be brought to the point of incipient vitrification. Throughout the whole process there is danger of distortion or discoloration in the ware unless the fires are skilfully handled. Properly done, the brick come out of the kiln in their beautiful, natural colors, due to the constitution of the clay or the various metallic oxides contained in it. To enhance these effects, different clays are sometimes mixed in going through the machines, certain ores may be added to modify the color, the brick surfaces may be scored in various ways, or the ware may be set in the kiln so as to avoid or get the flash of the fire. So that when you specify a fine face brick, you are getting a product which Nature has taken long to create and to which man has devoted his best scientific knowledge and inventive art.
The Philadelphia Carpenters used Brick Two Centuries Ago
A Wide Choice Offered
The American manufacturer of face brick has far outstripped the rest of the world in the wide range of color tones and textures he offers. So that the prospective builder has before him the possibility of giving to the exterior wall surface an enduring color scheme of monochrome uniformity or polychrome blending, as his taste may dictate. The whole sweep of color, in smooth or rough textures, is at his command from the pure, severe tones of pearl grays or creams, through buff, golden, and bronze tints to a descending scale of reds, down to purples, maroons, and even gun metal blacks. Thus, instead of building for your client a house of a dull, insubstantial, unattractive appearance, you can, by the use of face brick, build a substantial, enduring house that presents to the eye a veritable symphony in color, at once a satisfaction to yourself as well as to him, and a cause of appreciative remark by his neighbors or the casual passersby. It will always stand to the credit of your art as a builder.
Growing Demand for Brick Houses
You represent the best work that can be done in your community. People come to you when they want to build because they know you as an able designer and one capable not only of giving them sound advice but of carrying the work through to a successful termination. Why then confine yourself to one type of building such as frame or stucco?
More and more people are going to ask you about a brick house, and for very good reasons which we intend shortly to give you. Why not tell them you can build a brick house as easily as you can one of frame or stucco; and what is more, why not tell them the fact, viz., that it is a better house in every way, safer, more enduring, more comfortable, more attractive, and in the end more economical!
Face Brick Residence, Canton, Ohio. James Buehl, Architect
Enlarge Your Field as a Builder
You will thus greatly enlarge your field of action, increase your profits, and gain a much higher standing in the community as an all-around builder. If you hesitate about taking up building in brick, it is doubtless because you share the common erroneous belief that it costs your client too much, or because you think it outside of your building practice, presenting difficulties you do not care to face. But we are very sure that a careful reading of this Manual will convince you of the pre-eminent value of the face brick house for your client, and of your complete competence to build it for him.
What You Owe to the Community
Then we want you to read this Manual because, as a citizen, you owe something to the community in which you live. And as a builder you can discharge that obligation in no better way than in building more enduring and more beautiful houses, as you can by building in brick. By doing so, your dividends will be not only in material rewards but in a higher standing among your fellow citizens. You owe it to yourself to make the most of your noble craft and thus take the place in the community to which it entitles you.
The material you put into the walls of a house should, as Vitruvius said, always have structural and artistic merit. Face brick have both in a striking measure, and in consequence can show the strongest economic and personal reasons why they should be used.
Structural Merits of Face Brick
Structurally, bricks are a material easy to handle and when laid in the wall endure the heaviest pressures and strains. Hardened and matured in fire, they resist the ravages of flame. Examine the scene of any conflagration for evidence. Nor will they corrode or decay with the passing of time, as remains of ancient brickwork abundantly prove.
Artistic Merits of Face Brick
Artistically considered, face brick excel all other materials. Even a well-burned, selected common brick, with proper bond treatment and mortar color, may be made attractive, but the endless variety of color tones and textures found in face brick give to the artistic sense of the builder an unlimited choice. This variety is such that the most diverse tastes may be met in uniform shades or, preferably, in blended tones of the most delicate and charming effects. No other building material can approach face brick in the possibility of color schemes for the wall surface, either within or without—and the colors last, for they are an integral part of the enduring brick.
Glimpse of an Attractive Chicago Face Brick Cottage
Face Brick Residence, Chicago. L. J. Batchelder, Architect
Effect of Bond and Mortar Joint
But this is not all there is to be said on the artistic side by any means. The structural necessity of bonding the brick makes possible any number of beautiful bond and pattern effects, as illustrated on pages 33-35; and the kind of mortar joint, struck, cut flush, tooled, or raked (Fig. 57), properly toned with a color to harmonize with the brick, produces the most charming results which, in sunshine or shadow, give ever varying artistic effects.
In the beauty of brickwork, you have a great opportunity to arouse and hold the interest of your possible clients. On that basis alone you can make a strong appeal in offering your services.
Economic Merits
But perhaps the strongest appeal you can make is based on what naturally grows out of the strength and beauty of good brickwork, and that is real economy. But don't be deceived by the superficial error of initial cost. A $4.00 pair of shoes are cheaper than a $5.00 pair, it is true, but if the $5.00 pair fit better, look better, and wear twice as long, the $4.00 pair are dearer, and you would lose not only in money but in personal satisfaction by getting them. Real economy would lead you to buy the $5.00 pair.
Face Brick Bungalow, North Evanston, Ill. Robert E. Seyfarth, Architect
The Importance of Building a Home
Much more is this principle true in building a house. It is a very important undertaking for every man, for it involves considerable outlay of money and intimately concerns his comfort and welfare for a long period of years. A man rarely builds more than one house in his life-time, so that it is a serious matter to make a mistake,—he will always regret it. In other words, when he builds, he wants to avoid fooling himself, as he does, if he builds wrong; he wants to build right at the very start. This is what he certainly can do by building with brick. For out of the structural strength and artistic beauty of brick he gains advantages that make it the most economical investment in the end.
Upkeep or Maintenance
Take the items as they come, in their effect upon the value of the house. First, there is upkeep. So far as brick enter into the construction of a house, it requires practically no maintenance. You do not have to patch, repair, or paint a brick wall,—it wears. It is as sound in twenty-five years as the day it was built, and even more attractive. Figure up the paint bill for a frame house in ten years, then add the various little repairs necessitated by the shrinking, cracking, and decaying of wood exposed to the weather, and you have a neat little bill of upkeep, for the frame house, which is exactly nothing for brick.
Depreciation
Next consider depreciation which is a separate item from maintenance or upkeep, and is practically nil in the case of the brick house. Appraisal engineers have estimated it, for the brick house, at only one per cent a year, beginning after the first five years. And the one per cent in reality should apply only to such portions of the building as are subject to wear, as finished floors, plumbing, hardware, roofs, and the like. Approximately 60 per cent of a well built brick house does not depreciate at all through a long period of years. On the other hand, a frame house, according to the same authorities, begins to depreciate from the day it is finished at from 2 to 3 per cent annually. At the lowest estimate of 2 per cent a $6,500 frame house would depreciate $130 a year or $1,300 in ten years. A similar house of brick, worth let us say $7,000, would depreciate, allowing the full one per cent, $70 a year from the fifth year on, or $350 in ten years. That is, when you add to the $350 depreciation the $500 excess cost of the brick house, the resulting $850 is still less by $450 than the depreciation alone on the frame house. The wear and tear of time do not allow us to get away from these facts.
Face Brick Bank Building, Detroit. Geo. M. Lindsey Co., Architects
Saving on Insurance Rates
Furthermore, there is the matter of fire insurance, not a large one, but growing in the course of years to an appreciable sum. The reason for better insurance rates on the brick house is one that makes the strongest appeal to a man, and that is, safety from the fear and fact of fire, protection for himself and family from a justly dreaded misfortune. Acting on this reason, the insurance company will put from 19 to 37 per cent higher rate on a frame or stucco than on a brick house. Besides, you can carry 20 per cent less insurance on the more substantial structure.
Comfort and Health
Again the builder must consider the question of comfort and health. An 8-inch furred brick wall will require less coal to keep the house warm than in case of frame. This saving, however, is not nearly as important as uniform comfort which, especially in winter, has a vital bearing on the health and welfare of the family, more particularly as it affects very young or delicate children and old people, or even the strong who may, for the time being, be indisposed. The man who builds a good brick house saves on his coal and doctor bills.
Face Brick Bungalow, Chicago, Ill. J. R. Stone, Architect
Face Brick Public Library, Coatsville, Ind. Graham & Hill, Architects
Economic Value of Beauty
But if the brick house, because of its structural merits, is more economical on the score of upkeep, depreciation, insurance rate, comfort and health, it has a money value because of its artistic appearance. The substantial and attractive appearance of a face brick house makes the same appeal to everybody else as it did to the owner when he built it, so that if he desires, he can borrow more money on it, or if he must, can sell or rent it to better advantage. Beauty has a real economic value.
Sentimental Value an Asset
Finally, there is a sentimental value in owning the better house which can't be put in terms of money but is, nevertheless, real in terms of personal satisfaction. Every man feels a certain justifiable pride in his home if he knows that others admire it. This exerts an unconscious influence on him and raises his sense of self-respect. Besides, as a good citizen, a man should make his home as attractive as possible, not simply in the way of doing his share to improve his neighborhood, but as showing what he and his family stand for before the community, the soundest and best things.
Taking it all in all, you can tell your clients that in building a face brick house, they get more completely than in case of any other material the structural values of permanence, fire-safety, comfort and health, and the artistic value of beauty, out of which follow a real economy and a genuine personal satisfaction. - 12 - What, then, are the facts about the real economy of a face brick house? To begin with, we frankly admit and, in fact, assert that such a house costs more than the less substantial frame or stucco house,—as it ought, because it is worth more. It wears better, it looks better, it sells and rents better. You can never get something for nothing. You have to pay for it. But what we can show from actual figures is that the face brick house at the start costs only a little more than the frame or stucco house and in the end, when all the bills are paid, costs much less. It is a question of initial and final cost. Let us first look at the initial cost.
The Test of Figures
The accompanying table gives the results of actual figures obtained during the past ten years from all parts of our country by face brick manufacturers. As the prices of material have changed greatly, during the period in question, the percentages of difference will prove to be the only instructive figures, and are calculated on the total costs of the houses. The bids for 1919 we have in our files for reference and we are ready to show them to any interested person. As frame construction is generally the lowest, we take it as the base of comparison and give the percentage in excess over frame for (1) a solid, 8-inch brick wall, or face brick on common brick backing; (2) a brick veneer wall, or face brick in place of clapboards or shingles on frame; (3) a face brick on hollow tile wall, 8 inches thick; and (4) a stucco on frame wall.
A moderate sized 7-room dwelling is used as a typical example and is the same in every respect, except the exterior wall construction. First class face brick are used and the solid wall is furred.
Table of Percentage Differences
| Year | Frame | 1 Brick |
1 Veneer |
1 Tile |
1 Stucco |
| 1910 | 0.0% | 9.1% | 6.9% | 10.7% | 2.9% |
| 1913 | 0.0% | 8.1% | 5.9 | ..... | 4.0% |
| 1915 | 0.0% | 6.9% | 4.9 | ..... | 1.6% |
| 1919 | 0.0% | 5.1% | 4.4% | 6.5% | 0.1% |
Face Brick Store Front, Birmingham, Ala. W. M. C. Weston, Architect
These figures represent from nine to twenty-two bids in each case, on which the average is given. Different contractors in the same place and different parts of the country sometimes show considerable divergence, but in view of the wide territory from which these bids have been gathered and the time covered, the averages may be taken as indicative of about the constant percentage of difference in initial cost.
The Face Brick House Saves Money
It should be noted, in the case of the 8-inch solid brick wall and the brick on tile wall, that they are both over two inches thicker than the frame or stucco wall. But taking the 8-inch face brick solid, or hollow tile, wall as a fair comparison with frame and stucco, you can readily calculate what you really save by paying a little more at the start for the more substantial construction. Reverting to the economies of the face brick house you will find that the maintenance and depreciation items alone on the frame construction will, in a very few years, entirely wipe out the 5 or 6 per cent excess initial cost of the brick, to say nothing of all the other items that go to make your face brick home all the time an investment of a permanent and remunerative value.
Thus, a $7,000 frame house would mean, figuring excess cost at 6 per cent, a $7,420 face brick house. Depreciation at the lowest estimate of 2 per cent annually on the frame in five years would be $700; add to this a repainting bill of $250 and you have a total of $950. For the five years under consideration there would be no - 13 - depreciation at all to be calculated on the brick house, but a repainting bill of about 385 for doors, windows, and outside trim would have to be charged up. This means that the difference of 3865 between frame and brick upkeep or maintenance covers, in five years, more than twice the $420 excess initial cost of the brick. You may well suggest to your client that to be penny wise and pound foolish in building a home looks like an inexcusable folly. As you are his trusted adviser in all such important matters, you can not avoid your obligation of giving him the advice best suited to his interests.
Face Brick Primary School, Highland Park. Holmes & Flynn, Architects
Lumber Enters into the Problem
Please note in the figures of the table the decided tendency toward a diminished difference of percentages. The probable explanation is the rising price of lumber which has, from all accounts, by no means reached its crest, and which is forced by the tremendous demand now being made for that material in the world markets. Lumber is one of those staples of such wide and varied use that it is well to consider seriously its conservation, both in guarding its supply and in maintaining a reasonable price. We are all interested, for everybody at one time or another uses some form of lumber.
Face Brick Store Front, St. Louis, Mo. Preston J. Bradshaw, Architect
Need of Saving Lumber
However wide and varied the normal use of lumber may be, it is at the present time, due to the conditions in which the great war has left us, subject to abnormally excessive demands and will be for a period of years to come. When you consider that even in fireproof homes built of concrete, stone, or brick, lumber bears from 20 to 25 per cent of the cost of the building, and that now 80 per cent of the houses in the United States are built entirely of wood, you can easily guess why so much used to be said, even in pre-war times, about the disappearance of our forests and the advancing prices of lumber.
The Wastes of War
But picture what the war has done, and its inevitable effect upon the demand for lumber. According to a comprehensive report on the Direct and Indirect Costs of the War recently issued (November, 1919) by the Carnegie Endowment for International Peace, the direct cost to the warring nations amounts to 186 billions, of which the property loss on land was thirty billions and on sea seven billions. To this must be added forty-five billions as - 14 - loss of production. That is, not only were vast amounts of property destroyed, but the normal supply was greatly lowered. Take the matter of houses alone, not only were great numbers of them destroyed in the warring zones, but neither could they be replaced, nor could the new houses be built which were normally required by the community. Fortunately for us in America the war destroyed no property, but for a period of two years it prevented normal building to the extent of hundreds of thousands of houses. As a consequence, in Europe all the waste places must be rebuilt and, in both Europe and America, new houses in great numbers must be erected to catch up with normal requirements. There is a house famine the world over.
Attractive Small Face Brick House, Buffalo, N. Y. Thos. A. Fisher, Designer
The Lumber Burden of America
Where is all the needed lumber so lavishly used in building to come from? The average normal supply would not be sufficient and the supply cannot be increased for a period of years simply because Russia, which normally supplies 50 per cent of the lumber for the European markets, has fallen into such industrial chaos, and needs so much material for her own reconstruction that, according to one authority, she will not be able to export lumber again before 1922 or 1923. In consequence, the burden of supplying lumber to the world market at the present time will fall upon America. The effect upon prices, as well as upon quality of product, will be inevitable. The excessive demand will not only compel injurious denudation of our forest lands, but will more and more force the cutting of inferior timber.
How to Save Lumber
In view of such conditions there is urgent need of conserving our lumber supply by every available means, the simplest and most direct of which is to confine lumber strictly to its legitimate uses or, at any rate, not use it where more fitting materials are at hand. Take the abnormal demand pressure off lumber in every possible way, and we reduce the danger of a lumber famine that threatens us for some years to come. Thus, lumber should not be used in the exterior walls of a house, where it is exposed to the vicissitudes of the weather or to the trial of fire, especially when building material such as brick, which is nearly as cheap, and considering its durability and fire-safety, far more economical, is everywhere in evidence.
Lumber has its very legitimate and varied uses, but among them is not outside work where wind and rain and frost and fire search out its weaknesses. In view of its very nature and the great variety of its proper uses, it should never displace the exterior masonry wall, which in stone, tile, or brick makes the most secure and enduring structure. If the 80 per cent of building in this country, now done of frame, were put into brick, or other durable and fire-resistive materials, it would result in a great economic national gain, people would have better and more substantial houses, and the lumber which everybody needs would be conserved for the legitimate uses to which it is admirably adapted.
There are three possible ways of using face brick in building a wall, determined by the backing up material employed, each of which will be given special attention in the following pages.
First, there is the solid brick wall, consisting of face brick with a common brick backing. Of the strength, permanence, and structural value of this construction there can be no question. Objection is sometimes made to its cost but, in view of the facts we give later, this objection loses its force and proves to be a claim of actual economy. The only other objection heard is that of the dampness of the wall. This comes from one or both of two causes, pervious mortar joints, or sweating due to condensation of interior moisture on the cooled wall. Either condition may be completely overcome by furring the interior wall surface, a method recommended in this Manual, and provided for in the plans offered. The furring provides an air space that insulates against dampness and cold. With this furring, the other methods, sometimes employed, of mixing so-called waterproofing material with the mortar or of using colorless liquid waterproofing on the surface of the brickwork are not necessary. Even the furring, in certain climatic conditions as proved out by local experience and practice, is not needed. But in any case, it must always be seen that all the exterior joints of the wall, especially the head or vertical joints, are solidly filled with mortar. The possibility of efflorescence, which occasionally appears on the surface of the brick when the outside of the wall has been subjected to excessive moisture, may be prevented to a great extent by avoiding such ledges and projections in construction as permit the soaking of water into the surface of the brick work. See Glossary, page 110.
Secondly, the face brick wall may be built by using hollow tile in place of common brick for backing. This wall, like that of solid brick, being all of burnt clay, has the advantage of being fire-resistive, although insurance rates are not always as favorable because, in case of fire, the salvage is not as large as with the solid wall. Some builders prefer this type of wall, claiming that it is less expensive to build and that the hollow dead air spaces act as a heat insulation, giving a drier and warmer wall. On these points we have no means of forming a definite, final opinion. Your best plan would be to consult both the common brick and hollow tile people so as to form a judgment of your own on the subject. Either wall is sound construction and will give you entire satisfaction.
The third type of wall, known as veneer, is simply the application of face brick to the wooden framing of a frame house, in place of the clapboards or shingles. Although, as a substantial or a fire restrictive wall this type is not equal to solid brick or hollow tile, it has its friends among builders, largely on the score of local custom, familiarity, speed of construction, and cost. What it has to recommend it is the fact that in outer appearance and value it is a brick house, and in reality a big step in the right direction. But whichever type of wall you build, it is the face brick that gives to it character, distinction, class, all of which means not only deep personal satisfaction to the owner, but real money in higher rental or sales value, far in excess of the initial cost of the face brick over poorer and less attractive material.
Face Brick Bungalow, Atlanta, Ga. Leila Ross Wilburn, Architect
Take the frame wall. Where it is exposed to the weather, it shrinks, decays, and depreciates, requiring repeated paintings and repairs. Now substitute, at an added cost of only 4 or 5 per cent, a fine face brick for the drop siding and at once there is practically cut out painting, repairs, and depreciation. The brick veneer has surrounded the house with a solid, monolithic, permanent, windproof, shell of fireproof material, so that in consequence the owner has on the exterior, to all intents and purposes, the - 16 - strength and beauty of a face brick house. Besides his own personal satisfaction, he has added many times more than 4 or 5 per cent to the market value of his property. Or, suppose your client has an old frame house that is built on a good plan, but outwardly grown dilapidated in appearance and hard to rent or sell. Induce him to veneer it with an attractive face brick, as we explain on a later page, and for every dollar he puts in he will get two out.
Then take hollow tile wall construction and compare the value of it finished with stucco or with face brick. The face brick will cost from 2 to 3 per cent more on the cost of the house, but what will it give the owner in wear, appearance, and solidity of construction! If you stucco hollow tile the interior face of the wall in most cases must be furred. If you use face brick, not only additional solidity and strength are added to the wall but if, as we recommend throughout this Manual, an air space is left between brick and tile, the inside furring is not needed. Besides, stucco is apt to stain, crack, or, in damp climates with freezing weather, peel off in spots, presenting an unsightly appearance. You can assure your client, who is debating between stucco and face brick, that years of usage will prove the brick surface to be both in artistic appearance and actual economy by far the better investment. It costs a little more at the start, but is worth much more in the end.
Or, it may be that your client concludes to build a thoroughly good solid brick wall, but wants to save 3 to 4 per cent on the total cost of the house by using common brick throughout. This will be a good wall, no doubt, but how will it look! Common brick are not made with an eye to external appearance; their great merit lies in solid structural value. Occasionally a well-burned selected common brick, made of a clay that burns to a good color may be found and used, with proper care of bond and mortar joint, for facing purposes; but as a rule, the method of manufacturing common brick, and the structural uses for which they are intended do not contribute to the attractiveness of the wall surface. Hence, the natural development of the great face brick industry which adds to the solid structural merits of brick the invaluable merit of looks.
And how much do looks have to do with both the sentimental and commercial value of a house! What does the good wife think of the looks of the house she lives in? What do the neighbors think of it? And to be purely practical, what does the prospective renter or buyer think of it? You know that when a man wishes to sell his house, he cleans up the yard, repairs the fence, patches up the holes, and paints the house from top to bottom because he knows the value of looks. He knows that his restoring the house to its pristine glory attracts the purchaser, helps to persuade him, and secures a far better price of sale.
Cleanliness, looks, beauty, have a very real value in dollars and cents. The same principle applies to a face brick finish of the wall surface. Face brick are made with more care, are handled and shipped with more care, and laid with more care, just for the purpose of producing a more attractive wall. When you use face brick for your clients, you give them the last word in wall construction, which is at once, as no other material, strong, enduring, comfortable, fire-safe, economical, and beautiful.
Start of Veneering over Frame Note footing below and wall ties above
Veneering above Kitchen Roof Note angle irons and work at windows
The following data have been compiled and the drawings made by Mr. George W. Repp, a Chicago architect, and are based on the most widely followed building practice.
There is no intention of trying to inform the master mason or the master carpenter about his craft with which he is perfectly familiar, but to show the master carpenter builder the best methods of handling the brick problems that may confront him in solid brick, hollow tile, and veneer wall construction. A glossary of technical terms will be found at the close of this volume.
Whatever type of construction is chosen, solid brick, hollow tile, or veneer, it should rest upon a solid brick foundation. In the majority of cases, where soil conditions are favorable, the brick foundation walls of moderate sized houses do not need a footing except at points bearing concentrated loads. Naturally, the excavation should be carried down to good solid earth, free from loose, spongy soil or filled-in ground which might later permit sufficient unequal settlement to result in serious cracks throughout the wall of the house. Where conditions seem to require a footing, it may be either of brick laid in good cement mortar (Fig. 1) or of concrete as shown in our working drawings, and should be strengthened at points of special bearing stress. Which footing is chosen will depend largely on convenience of getting local material and labor. The bottom of the foundation wall or footing must always be below frost line which, of course, varies in different sections of the country; and this rule applies as well to all brickwork outside of the foundation wall proper.
Where the conditions of soil require, porous tile with open joints should be laid around the base of the foundation wall, not above the level of the basement floor nor below the bottom of the wall or footing, and slightly pitched to a point where it may be connected with the sewer or some natural outlet. Where this tile is laid in loose sandy Soil, the open joints should be wrapped with building paper to prevent the sand from clogging the drain. In heavy clay soil, the tile should be covered to the depth of about a foot with crushed stone to prevent packing of clay around the tile.
Foundation walls, technically speaking, are those walls below the grade line of the building that support the super-structure. Similar walls around areas are termed retaining walls and are not properly a part of the foundation. The thickness of foundation, as well as other walls for different structures, is usually established by ordinance in cities and towns; but, where there are no ordinances on the subject, a brick foundation wall of 12 inches, for two-story buildings, or one of 8 inches, for small one-story buildings, conforms to good practice.
The foundation wall should be built of a hard-burned common brick, and laid in Common Bond (See Fig. 47), with a good cement-lime mortar, starting at the bottom with a header course. As the headers, which serve as transverse bond, are not long enough to extend through the entire thickness of the 12-inch, as they do through the 8-inch wall, the header courses in the 12-inch wall very naturally cannot be on the same level at the front and back of the wall. In the bottom course, the header row is laid inside and the stretcher row outside, while in the next course above the position is reversed, and so on wherever the bonding header courses come.
The first course of brick is well bedded in mortar on the footing or the solid ground, as the case may be. At the corners and at proper intervals along the wall where necessary, a few brick, four or five courses high, are laid up in the advance to serve as leads or starting points for the bond and supports for the line which guides the mason to the proper level and alignment of the brick. The mortar is well spread with the trowel along the top of the brick course, and the brick to be laid is firmly pressed down on this mortar bed next the lead. The mortar thus squeezed out of the joint is cut off by the trowel and scraped on the head of the next brick to be laid which is then pressed on the mortar bed and shoved against the brick just laid, so as to squeeze mortar into the bottom of the vertical or head joint which is then thoroughly filled from the top by slushing with mortar. The stretcher courses for structural reasons should be well slushed with mortar between the front and back rows or tiers of brick, laid to break joint.
As the work progresses, the joints on the inside face of the basement wall should be neatly struck, while the outside joints should be cut flush for receiving a waterproof coating. The inside joints are struck by running the point of the trowel, held firmly at an angle, along the - 18 - upper or lower edge of the brick, thus making a smooth beveled joint (See Fig. 57).
The wall should be widened where indicated on any plan to serve as a foundation for the fireplace, and should be built hollow to provide for an ash pit. Where other chimneys occur, the wall at their base should be corbeled out to serve as a support for them.
After the wall has risen four or five feet, scaffolding is erected to carry on the upper portion. The scaffolding, necessary for the usual house, or other small building, consists of a series of rigid horses or trestles, approximately 5'-0" wide and 5'-0" high, on which are placed a half-dozen 2" × 10" planks laid close. The joists for the floor above may be used for this planking and then lifted into place when the wall is ready to receive them, thus effecting a saving in labor. Care should be taken to keep the horses several inches away from the inside face of the wall, lest the jarring caused by bricks and mortar being deposited on the scaffold may push the green wall out of plumb. The scaffolding for the foundation wall may be dispensed with, if it is found more convenient to lay the upper portion of the wall from the outside.
All brick foundation walls should be water-proofed on the outside except in gravelly, sandy, or very dry soil. In case there is danger of moisture rising in the wall by capillary attraction, the top of the footing should be water-proofed, before starting the walls, by a course of slate well bedded in mortar or by a strip of composition roofing. In wet locations, it would be well to carry the waterproofing under the basement floor also. For waterproofing the foundation walls, in slightly wet soils where the drainage is fair, a coating of one-half inch cement plaster may be applied to the outside surface of the brick as the wall is carried up. This plaster should be composed of one part Portland cement and two parts clean, sharp sand. The possibility of settlement cracking this cement coating makes it undesirable for use in heavy soils such as wet clay, or in low-lying land where the subsoil is likely to be wet. In such conditions, a coating of asphalt applied while boiling hot, thoroughly covering the brickwork, is very satisfactory. A less expensive though excellent waterproofing, which we suggest in our specifications, is made of three parts of tar and one of pitch. Tar alone is sometimes used, but is not recommended as it becomes brittle and is subject to cracks, similar to cement. Except in dry, warm weather, it is well to prepare the wall for the waterproofing by sizing or priming it with hot creosote, to overcome any dampness that might prevent the asphalt or tar-pitch from taking proper hold.
Where ordinances do not govern, the thickness of brick walls above the foundation may be 8 inches (two brick thick) for one or two-story small houses, except in the case of an unusually high gable where the first story wall should be 12 inches (three brick thick).
At the grade line the face brick is started, sometimes with a rowlock course or a soldier course, set either flush with the outer surface of the foundation wall or, as usual, slightly projected, in which case it is known as the water table. On the other hand, the entire base or lower portion of the building from the grade to the first floor sometimes extends as a water table beyond the wall above. Figs. 2-7 show various ways of treating this portion of the wall which add to the interest of the brickwork.
The method of laying the face brick is substantially the same as that for the foundation wall except that much greater care must be taken with the bond and mortar joints on the surface of the wall. A description of various bonds and patterns will be found on pages 33-35.
The method of bonding the face brick to the common brick backing follows the usual method Bonding means of headers every five or six courses, the headers in other than Common Bond, not used for bond, being cut in half. In the widely used Stretcher Bond where no headers occur except at corners, three methods of bonding may be employed. First, but only in case of walls 12 inches or more thick, - 19 - the back corners of the face brick may be clipped so that the backing brick fit diagonally into the notches thus provided (Fig. 8). This sort of concealed bond is weak and should be avoided.
Secondly, the face brick may be tied to the backing by laying metal strips or wires, supplied by any material dealer, in the bed joints of face and backing brick (Fig. 9). Although this method is frequently used and in a way answers the purpose, we do not regard it as the simplest and best.
We recommend the third method which is a natural bond, thoroughly workmanlike and sound. Every sixth or seventh course, pairs of headers are laid with a tight buttered, and hence invisible, joint alternating with the stretchers. As the joint between the headers is hardly seen, the two headers give the appearance of a stretcher, so that the effect of the Running or Stretcher Bond is maintained (See Fig. 31).
The face brick are laid up five or six courses in advance of the backing and the joints on the face of the wall are finished (See Fig. 57) as the work progresses. On outside exposed surfaces, the struck joint should be avoided, and particular care should be taken in seeing that all head or vertical joints are thoroughly filled with mortar from bottom to top. Each face course should be started so as to care for the bond or pattern chosen, as well as for the transverse structural bond. The backing is then laid in the usual way, always, so far as possible, breaking joint with the face brick. No attempt, except where strength is specially demanded, should be made to slush the thin space between the front and back tiers of brick, as this space helps to make the wall drier and warmer. Wherever the common brick backing is to be exposed, the joints must be neatly struck as in the basement wall. At the close of the day's work, face and backing should be brought to approximately the same level and covered to protect the work from the weather.
The brickwork should be stopped at the point where the first floor joists are to rest upon it, and care should be taken to have the top course perfectly level, so that the joists may be set without wedging or blocking. The joists set by the carpenter should have, at intervals of approximately six feet, wrought iron joist anchors solidly spiked to them, and extending into the wall. Great care should be exercised in placing these anchors as near the bottom of the joists as possible in order to lessen the strain on the brick wall, in case a fire causes the joists to drop.
For the same reason, the ends of all the joists, with or without anchors, should be beveled so that, in like conditions, the joists will readily fall out without injury to the wall. Fig. 10 illustrates the correct method of attaching the anchor to the joist. The dotted lines show how the joist would drop without damaging the wall. Fig. 11 shows the destructive effect caused by the anchor being placed at the top of the joist. The importance of these points cannot be emphasized too much as walls have had to be rebuilt which by proper framing construction would have stood intact. After the joists are placed, the brickwork is continued up between, and leaving a small "breathing" space around, them. The same method of joisting is followed at the upper floors.
If the lower part of a wall is thicker by a brick than the upper part, it should be carried up its full thickness nearly to the top of the joists Fire Stops where ft is stepped back to the inside face of the upper part, thus forming with the plastering a fire stop at the top of the joists, while a projection of a quarter brick length should always be provided as a fire stop at the bottom of the joists, as shown in Fig. 12. If the wall is the same thickness throughout, the brickwork should be corbeled out between - 20 - the joists two inches, the full height of the joists, to form a fire stop as in Fig. 13. The object of the fire stop is to block all possible passage of fire from the space between the joists to that between the furring strips on the wall, or the reverse. Without these fire stops, a fire originating in the floor could communicate with the furring space on the wall above, or originating in the furring space could communicate with the floor. With the stops, the fire is confined to certain spaces and is retarded instead of spreading. These corbels also serve the wholesome purpose of checking vermin of all kinds from passage through the floor and wall spaces.
Figs. 12 and 13 also show the proper way of placing the lath at the corner of the ceiling so as to take full advantage of the fire stops. The ceiling lath, usually placed first, should be started far enough away from the side walls so that when the side wall lath is placed tight, as it ought to be, against the underside of the floor joist, there will be space enough for the plaster to push through and form a key touching the bottom brick of the corbel. As the corbel by construction is necessarily the distance of a mortar joint above the bottom of the joists, the openings are thus completely sealed by the plaster key. In cheap speculative buildings, these fire stops are too often omitted or a pretext for them is resorted to by projecting only one brick at the top or bottom of the joists. This, however, is as good as no fire stop at all. Figs. 14 and 15 show the lath as they ought not to be placed and also how false corbeling leaves the passages really unstopped, thus defeating altogether the purpose of fire stops.
Masonry walls that are to be furred, sometimes have, as the work progresses, common wood laths laid in the joints of the brickwork on the inside face of the wall, about every seventh course, except over chimneys. The lath should be staggered so as to avoid two vertical lath joints in succession. These serve as nail holds for the furring strips as explained on page 24.
Where local requirements demand a 12-inch wall, the method of construction is the same as in the 8-inch wall, except that two rows or tiers of backing brick, instead of one, are carried up to the advanced level of the face brick, leaving the thin spaces between the tiers of brick open as the best way of securing a warmer and drier wall. Of course, in the case of piers and points in the wall that carry heavy loads, all interior joints should be well slushed with mortar for evident structural reasons.
Before the top of the wall is reached, the anchors for bolting down the roof plate should be placed and the brickwork carried up around them (Fig. 16). They should be made of half-inch bolts at least 12 inches long, with a tee or washer at the bottom and a nut and washer at the top, and should be set approximately every 6 feet along the wall. After the carpenter has placed the roof plate and before it is bolted down, the mason should bed with cement mortar under it.
When the wall is finally carried to the top and the roof rafters set, but before the roof boarding is in place, the mason should fill in between the roof rafters with one tier of brick as shown in Fig. 16. This is called nogging. Its purpose is to block effectually the openings between the roof rafters and prevent the wind from entering the walls and attic. This adds greatly to the comfort of the house in cold weather. In warm climates nogging will be found unnecessary.
The Chimney
While the chimney may be made one of the most charming and effective elements of the house design, its structural and practical necessities are its most striking features.
The proper construction, size, and height of chimneys are of the utmost importance both for the successful working - 21 - of the heating system and for the prevention of fires. The chimney may, though it need not be, a point of danger to the safety of the home. A little intelligent care in its construction will prove to be the best insurance. As a first precaution, all wood framing of floor and roof must be kept at least 2 inches away from the chimney and no other woodwork of any kind be projected into the brickwork surrounding the flues.
Chimneys should be tightly built of solid brick, have no openings except those required for the connection of the heating apparatus, and should always extend at least one foot above the highest point of the roof. In some cases, depending on local surroundings, it may be desirable to carry them somewhat higher. Those terminating below the level of the roof usually have poor draft because the wind, sweeping across or against the roof, may form eddies that drive down the chimney or check the natural rise of the smoke (Fig. 17).
The flues of chimneys should not start from the bottom of the foundation but only about a foot below the first smoke pipe openings, and should be lined with terra cotta flue lining their entire height. Care should be taken in setting flue linings to be sure that the joints are well cemented and, at the same time, that all spaces between the lining and brickwork are tightly filled with mortar. Any openings in the joints of the tile lining, or even of the brickwork, not only check the draft but are a fire menace. Cement plaster should not be substituted for the flue lining as it is likely to crack and fall off, thus leaving the flue in a dangerous condition. However, where flue linings are not available, a strong smooth cement plaster may be used, in which case the chimney wall should be at least 8 inches thick.
Modern heating plants necessitate accurate construction of chimneys, and most manufacturers of heating apparatus nowadays recommend the area and height of the flue necessary for their installations. The following table will prove useful in considering the question of heating plant or fireplace, by showing the dimensions of flue linings to be ordered when the required area is ascertained.
Table of Commercial Flue Linings
| Outside Dimensions | Actual Inside Area |
| 81/2" × 81/2" | 52 sq. in. |
| 81/2" × 13 " | 80 " " |
| 13 " × 13 " | 126 " " |
| 13 " × 18 " | 169 " " |
| 18 " × 18 " | 240 " " |
![]() |
![]() |
| Fig. 18. Chimney Withes | Fig. 19. Chimney Offset |
Where two or more flues are contained in one chimney, they should always be separated by a brick partition 4 inches thick, called a withe, and bonded to the outside brickwork as shown in Fig. 18. Chimneys should run as straight as possible from bottom to top, in order to secure better draft and facilitate cleaning. If, however, offsets are necessary from one story to another, they should be very gradual, never less than at an angle of 30° from the vertical. If abrupt offsets occur in flues, soot will soon be deposited, choking the flue and making cleaning almost impossible (Fig. 19). Care should be taken while the chimney is building that the bottom does not become filled with mortar or brick bats. At the bottom of the furnace flue in the basement, an iron cleanout door should be provided as a convenience for removing soot.
Chimneys erected on the interior of a building are apt to be more efficient because the warm air surrounding them facilitates the draft, while those located on the exterior naturally are somewhat affected by the cool air on the outside.
Angles, Bays, and Corners
All the houses represented in this book are designed without any obtuse or acute angled corners. If, however, you wish to erect a brick building with an angular corner or bay, specially shaped face brick for the purpose, called splay or octagon brick, may be obtained from the dealers or manufacturers. If for any reason these special shapes are not easily available, the angle - 22 - may be formed by the use of standard size brick. The method shown in Fig. 20 is used only on cheap work and should be discouraged, for it leaves ledges for the lodgment of snow and dirt, decreases the thickness of the wall, and besides is rather unsightly. The better method, as shown in Fig. 21, also has the objection of forming ledges for the lodgment of snow and dirt, but it makes a wall of full thickness, and has been used by some architects in a very artistic manner. The best method of all, for treating these corners, is shown in Fig. 22. Standard bricks are used with the minimum amount of cutting. Fig. 23 shows a method of laying brick at an acute angled corner. It is simple to lay up, there is little cutting of brick, and it presents a better looking corner than one with a sharp angle.
Openings
Window sills in brick buildings should be of brick or stone. Cement, unless pre-cast, is not well adapted for the purpose. Brick window sills are preferable to stone for, besides adding a charming touch to the building, they are inexpensive since they are of the same material as the wall and placed by the same workmen who lay up the wall, thus obviating the necessity of additional labor to place the heavy stone. Brick for sills should be laid on edge and pitched approximately at an incline of 1 inch in 6 to shed the water. They should also project at least an inch beyond the face of the wall to form a drip, and be laid in rich cement mortar composed of equal parts of cement and sand, with joints well filled and finished with a hard smooth surface. Door sills may be of wood, brick, or stone. In case of a stone sill, it should be exactly the height of either two or three courses of brick.
The window frames are set by the carpenter on top of the sill in a thin bed of mortar. When they are leveled, plumbed, and braced, the brickwork is carried up around the jambs or weight boxes, as shown in Fig. 24, always making certain that the corner or jamb of the brick opening is perfectly plumb. Great care should be taken to fill solid with mortar the spaces between the brickwork and the window frame, to stop the wind.
Stock Window Sizes
| Double Hung Sash, 13/8" Thick | |||
| Glass Size, D. S. | Lights[A] | Sash Size | Masonry Opening |
| 16" × 16" | 2 | 1'- 8" × 3'- 2" | 2'-0" × 3'- 6" |
| 16" × 26" | 2 | 1'- 8" × 4'-10" | 2'-0" × 5'- 2" |
| 22" × 20" | 2 | 2'- 2" × 3'-10" | 2'-6" × 4'- 2" |
| 28" × 26" | 2 | 2'- 8" × 4'-10" | 3'-0" × 5'- 2" |
| 30" × 24" | 2 | 2'-10" × 4'- 6" | 3'-2" × 4'-10" |
| 30" × 26" | 2 | 2'-10" × 4'-10" | 3'-2" × 5'- 2" |
| 34" × 16" | 2 | 3'- 2" × 3'- 2" | 3'-6" × 3'- 6" |
| 34" × 20" | 2 | 3'- 2" × 3'-10" | 3'-6" × 4'- 2" |
| 34" × 26" | 2 | 3'- 2" × 4'-10" | 3'-6" × 5'- 2" |
| 40" × 26" | 2 | 3'- 8" × 4'-10" | 4'-0" × 5'- 2" |
| 42" × 26" | 2 | 3'-10" × 4'-10" | 4'-2" × 5'- 2" |
| 52" × 26" | 2 | 4'- 8" × 4'-10" | 5'-0" × 5'- 2" |
| Basement Sash, 13/8" Thick | |||
| 20" × 14" | 2 | 2'- 0" × 1'- 5" | 2'-4" × 1'- 9" |
| 30" × 14" | 3 | 2'-10" × 1'- 5" | 3'-2" × 1'- 9" |
| 42" × 14" | 3 | 3'-10" × 1'- 5" | 4'-2" × 1'- 9" |
| Casement Sash, 13/8" or 13/4" Thick | |||
| 20" × 24" | 4 | 2'- 0" × 2'- 5" | 2'-4" × 2'- 9"[B] |
| 20" × 36" | 6 | 2'- 0" × 3'- 5" | 2'-4" × 3'- 9"[B] |
| 20" × 42" | 6 | 2'- 0" × 3'-11" | 2'-4" × 4'- 3"[B] |
| 20" × 48" | 8 | 2'- 0" × 4'- 5" | 2'-4" × 4'- 9"[B] |
| 20" × 56" | 8 | 2'- 0" × 5'- 1" | 2'-4" × 5'- 5"[B] |
[A] If divided lights are wanted, a special order will be necessary, the total glass size remaining the same.
[B] These heights are for outswinging casements; for inswinging casements, add 3/8" to the height of the dimensions given.
Stock Door Sizes[C]
| Exterior Doors 13/8" or 13/4" Thick | |
| 2'-8" × 6'-8" | 3'-0" × 6'-8" |
| 2'-8" × 7'-0" | 3'-0" × 7'-0" |
[C] Openings will be 4" wider and 23/4" higher than dimensions given.
Brick linear dimensions should, wherever possible, be calculated so as to reduce cutting of brick to a minimum, especially where openings, bays, chimneys, and the like are concerned. Our plans are drawn with this in view; and to facilitate readily obtaining sash and exterior door sizes, we would suggest that contractors, so far as possible, use stock dimensions taken from the accompanying tables which cover the vast majority of requirements. For each mullion between grouped, double-hung windows allow 6 inches, and between casement windows 2 inches. The stock window frames, which are essentially the same as those used in frame construction, require no more labor to set and brace than in case of frame walls. All that is necessary is to box them in to make a housing for the sash weights. After the brickwork is laid around the frame, a staff bead or brick mold is nailed to its outside face, fitting snugly up to the brickwork, adding if so desired a scribing bead.
Should local stock frames vary slightly from the dimensions given, or if a scribing bead is used in addition to the regular staff mold, the brickwork can easily be laid so as to take up the difference. In case the masonry opening is finished before the frames arrive on the job, great care should be taken to have them built the exact size of the frame ordered, always taking into consideration the 1 inch to 6 inches slope of the sill, and the scribing bead if used.
Opening Supports
The brickwork over all openings may be supported, either by a steel or wood lintel, or by a brick arch. Either the full thickness of the wall or the face brick only may be carried on a steel lintel or an arch. Lintels are rarely used in combination with semi-circular arches. When a steel lintel or an arch supports the face brick, the backing usually rests on a wooden lintel, set higher than the arch or else concealed by the frame. There should be a brick relieving arch above wooden lintels, spanning more than 3 feet, bearing on the wall beyond the ends of the lintel, so that the brickwork will not be weakened should the lintel be destroyed by fire (Fig. 28). The space between arch and lintel is filled with brick after the arch is built. Seasoned brickwork will support itself over the smaller spans.
For a steel lintel over a small opening, an angle is sufficient. If the interior wall surface is also to be of face brick, the lintel is made by placing two angles back to back, as the usual wood lintel in such a place would be unsightly. For openings up to 4 feet wide, a 4" × 3" or a 3" × 3" angle is sufficient; wider openings up to 5 feet would require a 3" × 5" angle. Over larger openings heavier sections of steel have to be used. Both steel and wood lintels are usually made 8 inches longer than the width of the opening.
The brick arches generally employed in small buildings are flat, segmental, or full semi-circular (Figs. 25-29). The segmental and semi-circular arches are usually best built of rowlock courses, their number depending upon the width of the opening. Flat brick arches over two feet wide should be supported by steel, the brick being usually set soldier fashion. As these brick are slightly inclined from the vertical, their end edges should be clipped to make the joints on the face of the arch come in a horizontal line, as in Fig. 26. In Fig. 25, the appearance of the arch face is not so workmanlike and neat because the brick have not been clipped along the line of the middle joints. For either type of arch, the brickwork both sides of the opening must be beveled in the form of skewbacks, to serve as beds for receiving the thrust of the arch as shown in the figures. If these arches are properly handled both as to design and execution, they add greatly to the appearance of the entire wall surface.
Various Methods of Furring
The inside of all exterior brick walls should be furred, except in climatic conditions where it has proved unnecessary, in order to form an air space between the brickwork and the plaster. This furring may be of wood, hollow tile, or metal. WoodThe first, which is ordinarily used, consists of 1" × 2" wooden strips placed vertically on the wall and spaced 16 inches on center (Fig. 24). The strips are either nailed to the lath which have been placed in the joints of the brickwork by the mason, or attached by driving the nails into the mortar joints. The carpenter, in placing the strips, should wedge behind them where necessary to make them plumb. The grounds and lath are placed directly on these strips. Hollow Tile Hollow tile furring is formed by splitting 3-inch or 4-inch "split furring" tile, which have been scored in manufacturing for this purpose, placing the webs against the brick wall, and anchoring them by driving ten-penny nails into the mortar joints over every third tile in every second course. The tile should be laid without mortar so as not to make a solid connection which would transmit moisture. This tile furring makes a good surface for interior plastering. MetalMetal furring is only used with metal lath and consists of small steel rods or other stiffening members either placed separately on the wall or as part of the metal lath.
Cleaning and Pointing
Not until after the plasterer has left the job should the face brick be cleaned or washed down. This is done with a 5 per cent muriatic acid solution or about one pint of acid to four gallons of water. A stronger solution is likely to do injury. Apply with a good scrubbing brush to remove all dirt and spattered mortar, and then rinse with clean water. While washing the wall, defects in joints should be pointed up.
The Hollow Brick Wall
A variation of solid brick construction is the so-called hollow or vaulted wall in which the face and common brick are separated by a two-inch air space and bonded together by metal ties laid in the mortar joints at proper intervals. This type of wall has been extensively used for many years, especially in the East.
Its friends claim that it is stiffer than a solid wall of the same amount of brick; that it offers a better insulation, by reason of the air space, against cold and dampness; and that therefore it saves the necessity of furring and fire stops on the interior wall surface. On the other hand, admitting the value of the air space and the consequent saving of furring, objection is made that the air space is apt to get filled with mortar and brick chips during construction; that the metal ties, unless heavily galvanized or dipped in asphaltum, rust out in a comparatively short time; and that it is not as strong a bearing wall as the solid wall of the same brick content. Mr. Arthur W. Joslin, a contractor and builder of Boston, whose extensive practice gives his judgment weight, says in summing up the pros and cons: "The 10-inch vaulted wall is strong enough for ordinary dwellings, even though the ties do rust out, unless it is built out of the poorest kind of brick with very poor mortar. In my opinion, a vaulted wall, if properly built, the vault not filled up with droppings, and provisions made for ventilating from the inside, is an ideal wall for dwelling house construction, but I would not recommend it for buildings for other purposes where there would be more or less of a dead load coming on the floors." On the matter of comparative costs, Mr. Joslin adds: "It is cheaper to build an 8-inch solid than a 10-inch vaulted wall, and slightly cheaper to build a 10-inch vaulted than a 12-inch solid wall."
The accompanying drawing shows a cross section of this type of brick wall. Except in a few particulars, its construction does not differ essentially from that of the solid brick wall as already described.
A 12-inch brick foundation is wide enough for the 10-inch wall and a 16-inch foundation for the 14-inch wall. The metal ties, heavily galvanized or coated with asphaltum, should be placed about 18 inches apart at every fifth or sixth course and extend at least 2 inches into the mortar joints.
Fire stops are not needed, nor is furring, as the plaster may be laid directly on the brick. In order to preserve the chief merit of this type of brick wall, great care should be taken, during construction, that the 2-inch air space be not allowed to fill up with mortar and brick chips.
The local ordinances in some municipalities require thicker walls with hollow tile construction than where common brick backing is used, which affects the comparative cost of the buildings; but, where the total thickness may be kept the same as for solid brick, the cost is practically the same, with slight differences one way or the other in different communities. The tile used for backing may be either soft or hard burned, but never with an absorption of over 12 per cent, and are scored variously so that there may always be a good keying surface for plaster. These tile may be set with the hollow spaces or cells running either horizontally or vertically, as the case demands or the builder chooses.
Walls of this form of construction are built in much the same manner as walls with common brick backing, except that it is always desirable to use cement mortar with the tile to insure the needed strength of bond. The face brick are first carried up four or five courses and then the hollow tile units, of whatever thickness chosen, are laid up behind the brick, leaving an inch space between the tile and brick (Fig. 31). The tile are laid, with broken joint as in running bond, in a half-inch mortar bed. When the tile width is over 4 inches, the mortar should be spread only on the front and back edges of the tile, leaving a hollow space in the center. In the vertical joints only the front and back webs require mortar. If vertical tile are used all the webs should be well mortared, while the vertical joints are simply buttered.
Care must be taken that the space between the tile and brick does not get filled up with mortar, for this would defeat its purpose of serving as an insulation against moisture and cold. With this one-inch space between brick and tile open, furring and lathing are saved, as the plaster may be directly laid on the tile and the necessity of fire stops avoided.
At window and door openings, in case 4" × 5" × 12" or 8" × 5" × 12" horizontal tile are laid, either common brick or special half and full closure tile (Figs. 31 and 59) should be used, in order to close the openings at the end of the horizontal tile courses, thus making around the frames good joints which should be tightly filled with mortar. When the 12" × 12" tile are laid horizontal, those in the window and door jambs need simply be set vertical to serve as closures.
It will be found that an even number of tile does not always work out with the length of the wall or pier, leaving a space of a few inches. This space may be filled by cutting a tile or using pieces of tile slabs.
For houses of the character presented in this Manual, tile either 4, 6, or 8 inches wide may be used, depending on local ordinance or the choice of the owner. A 5-inch backing may be obtained by simply laying the 4" × 5" × 12" tile on the 5-inch edge. Both 4- and 8-inch widths are made 5" × 12" or 12" × 12" in height and length. The 6-inch width generally comes 12" × 12" in height and length, but may be obtained in the 5" × 12" size from certain manufacturers, if so desired.
The 5" × 12" tile in either width are laid horizontal, while the 12" × 12" tile in either width may be laid vertical or horizontal. Either method is satisfactory although, for heavy bearing walls, some builders prefer the vertical method on the ground that it gives a stronger bearing wall because the vertical webs directly bear on each other. If laid vertical, the top course of tile should be placed horizontal to give a good bed for the wall plate.
Four courses of standard size brick, provided a 3/8-inch mortar joint is used, will equal in height two 5" × 12" tile, making every fifth course a - 26 - bonding course (Fig. 31). And five courses of standard size brick, provided a 1/4-inch mortar joint is used, will equal in height one 12" × 12" tile, or if 1/2-inch joints are used, will equal in height 3 courses of 4" × 12" tile 5 inches wide, making every sixth course a bonding course. If wider mortar joints are desired, you can in the latter case make every fifth course a bonding course by using 12" × 12" vertical tile which you can order cut to any length required. But where either the 5" × 12" or the 12" × 12" tile are laid horizontal, the number of courses of face brick and the size of mortar joints cannot be changed.
The face brick are bonded to the tile backing (Fig. 31) precisely in the same manner as previously explained for common brick, double headers being used in case of Stretcher Bond and the headers, wherever required, in other bonds (See page 18). But as this wall is full 9 inches or more thick, the headers in the bonding courses leave recesses one inch or more deep at intervals on the inside face of the wall (Fig. 31). These if shallow, should be filled with plaster, containing a large amount of fibre, before the regular plastering is started; if deep, as when the 8-inch wide tile is used for backing, a stretcher course of common brick or brick-size hollow tile fills the space.
The chimney construction does not differ in any essential from that used for the solid brick wall, but we strongly urge the use of brick for the chimney, rather than tile or concrete blocks, as affording more reliable protection for the flue.
The window sills, door sills, and lintels are the same as in solid brick construction except that, preferably, instead of the wooden lintel supporting the backing, the lintel be made of hollow tile filled with cement and reinforced by one or more steel rods (Fig. 32). These tile lintels should be made on the ground by standing the tile on end for filling. When the concrete is set, they are ready to be lifted into place.
The story heights should be figured so that an exact number of whole tile may be used from the bottom of the joists on one floor to the bottom of those on the next floor, always allowing one-half inch for the bed joints. But where this is not possible, special tile slabs one inch thick, which may be had from the dealer, should be used to obtain the exact height required, so that an even and solid bearing may be formed for the floor joists. The wall plates for the roof construction are anchored in the same manner as in the solid brick wall, except that anchors should be 20 inches long; likewise, brick nogging should be placed between the roof rafters.
As in the case of the solid brick construction, when the plasterers have gone, the face brick should be cleaned down and pointed where necessary.
As already indicated, this type of wall construction is preferred by some builders because it is somewhat less expensive than solid brick or hollow tile and can be more quickly built. The wooden frame may be completed and roofed before the brick veneer is started on the outside. If constructed according to our specifications, the veneered wall makes a much warmer and more comfortable house than frame, not only because the veneer wall is over 2 inches thicker than the frame, but because the brick veneering forms a solid monolithic shell that steadies the framework and is proof against the wind pressure that searches out the cracks and crannies of the less substantial construction. Furthermore, while the veneer house does not get the favored insurance rates of the solid brick structure, it is, if provided with a non-combustible roof, safe against adjacent fires; in fact, from the exterior, presents the advantages of a solid face brick house.
In this type of construction the studding is not placed at the face of the foundation wall, but set at the back of the wall, allowing sufficient space in front of the sheathing for the veneer of face brick. The studs are then sheathed as for the usual frame building and covered with building paper, held - 27 - in place with 2" × 1" or 1" × 5/8" furring strips, laid on vertically or horizontally over each lap of paper and once between. The face brick, set one inch from the sheathing, are laid up, so far as the outer bond is concerned, in the same manner as for facing the solid masonry wall, and are fastened to the framework by metal ties spaced horizontally about on every stud and vertically every four or five courses (Fig. 33).
These ties are of two kinds, either corrugated metal strips with one end nailed to the sheathing and the other laid in the bed joints, or thirty-penny wire nails which must be spaced with the studs into which they are driven through the sheathing, so as to leave a projection sufficient to extend about one inch into the bed joints of the brickwork.
The last method is recommended as the most substantial and permanent, but care should be taken that the nails be driven with a slant into the wood frame at a point somewhat above the brick so that when tapped by a hammer they may be bent down to the level of the joint (Fig. 34). If they are driven in at the exact level of the brick, they will, when bent down, push the brick out of alignment.
Brick window sills with this type of construction are the same as for the solid masonry wall, except that the inner ends of the brick must be cut to fit against the sheathing. The window and door frames are set in place as in frame construction. While the brickwork over openings may be carried on arches, steel angles are almost universally used for this purpose.
The brick porches should have the porch walls and piers of solid brickwork faced on both sides, with bond pattern or ornamentation following, in the main, the design of the house walls.
Chimney construction for the veneer house is the same as for the brick house, except that care should be taken in setting outside chimneys clear of the sheathing, so as not to cut into the frame construction.
Veneering Old Frame Structures
It often occurs that a frame house is not kept in repair and depreciates to such an extent that the expenditure for necessary painting and repairs to restore it would amount to an unwarranted figure. Or, as in many cases, the frame house, though kept in fair condition by dint of frequent painting and repairs, is decidedly out of date, or lacks the "class" that surrounding buildings may have. This often applies also to the old spotted and stained stucco house. In either case, the owner suffers loss in the value of his investment. There is a simple way, however, to recover this loss and more than restore the value of his investment, and that is by veneering the house with an attractive face brick. The framing of the house is in all probability substantially sound, it is only the exterior that is dilapidated and outclassed. By veneering his house with a well-chosen face brick, laid in proper bond and mortar joint, the owner at a comparatively small expenditure has got what is to all intents and purposes a new house.
In the first place, he has "painted" it once and for all with beautiful colors that will never come off, and he has eliminated all future paint and repair bills for the exterior where much of his cost of upkeep for the old frame house came. In the second place, he has a far more uniformly comfortable house with a very appreciable reduction of his coal bills, due to the solid, monolithic shell of brick covering the frame. Practical heating engineers engaged in installing heating apparatus calculate that in a moderate sized veneer house as compared with frame there is, during an average winter in the North, a saving of approximately 8 per cent on the coal bill.
Finally, he would have, so far as the community is concerned, or a possible future purchaser, an attractive modern face brick house, of which he may be proud as a place of residence, or which would be more profitable as a renting or selling property. The enhanced value of his property would be far beyond his expenditure.
Many contractors could comfortably increase their profits and keep busy through dull months - 28 - by presenting the above facts to the owner whose old frame or stucco house needs repairs. Instead of giving him a staggering figure for repair work that is only temporary, he could be shown how, by investing a little more, he could greatly contribute to his personal satisfaction and substantially increase the value of his property. Veneering an old house, either frame or stucco, is no more difficult than veneering a new structure and is accomplished in much the same manner.
An eight-inch concrete footing should be placed against the outside of the existing foundation wall, extending from grade to below frost line and resting on good solid soil. The brick veneer, starting from this footing, is carried up with an inch air space between it and the old siding (which is not removed) and tied by driving thirty-penny nails through the siding or other finish into the sheathing and studs (Fig. 35).
The usual steel lintels are used over window and door openings. Where the veneer is to be carried over porches or other low additions, the siding immediately above the roof should be removed and a steel angle placed against the sheathing and securely attached to the studs by lag screws, so that no weight of the brickwork comes on the roof. See illustrations of work on page 16.
The brickwork is laid up to the door and window trim and a staff bead molding, in the corner formed by the brick, securely nailed to the old trim, making a tight joint (See Fig. 35). Similar mouldings should be placed at the underside of roofs, porch ceilings, and like places where the brick meets the old frame finish.
New Store Fronts
A very remunerative addition to his business may be made by the builder in veneering old frame or stucco store buildings. All that applies to the advantage of veneering the old frame house especially applies here. An attractive store front is one of the merchant's best advertisements. It indicates that he is prosperous, and it draws customers who always prefer to deal with the successful merchant, and where the surroundings are pleasant. Show the merchant of your town the increased value of his property and the increased profits of his business made possible by a beautiful store front of face brick, and you will get more business yourself.
A New Face Brick Porch
Sometimes the porch on a frame building is in need of a new floor, railing, and steps. Instead of rebuilding the frame porch which will need constant repair and painting, a new face brick porch with either a brick or wooden floor could be built which would not only end all repair bills but vastly improve the appearance of the house. This may be accomplished very easily. Remove the entire porch except the roof which should be held by temporary supports. After excavating to the necessary depth, build a common brick foundation to grade for the piers and wall of the porch. The piers should be the same dimensions as the brick piers above, and the connecting wall should be 8 inches thick. Above the grade this 8-inch wall should be finished with face brick on the outside, while above the porch floor it should be face brick on both sides; and, at the correct height, should have a coping of face brick laid on edge. The piers should be carried up to the porch cornice and may be finished with a course of brick on edge, projecting slightly, to match the coping on the porch wall, or in any other plain or ornamental fashion desired. Where the walls join the frame building they should be anchored with nails driven into the wall the same as already explained for brick veneer work.
While the cost of a new brick porch on an old house is moderate, it adds greatly to the appearance of the house and thus appreciably increases its market value.
The Glow of the Friendly Hearth
It is the dream of most people when planning a home to have a real fireplace in which they may have a real fire of real logs, around which to sit with family or friends during the long winter evenings. Every home, even one built of frame or stucco, should be provided with at least one real fireplace.
And no matter what kind of a house a man may build, he won't find anything else quite so good or appropriate for a fireplace as brick. For having stood the test of flame in their making, they defy the flame in their use. The feeling that the roaring fire on the hearth beats harmlessly against the enduring brick, as the sea beats in vain against a granite headland, gives a genuine sense of security and satisfaction. Then the texture and color of the brick make them at once adaptable to any type of room or scheme of interior decoration the lady of the house may choose.
The location of the fireplace in the room is of great importance to its enjoyment. As it is the most ornamental feature of the interior of the house, it should be given a prominent position, but it should not be in the line of travel through the room, near the entrance door, or where a cross draft sweeps it. The far end of the room is one of the best locations; or better still, an ingle nook. If placed on the broad side of a room, it is pretty sure to project so far as to reduce the practicable width of-the room and force the rug over the hearth. If placed on an outside wall, it is best not to have large flanking windows, as one does not like to sit facing too much light, especially where a strong sun is shining.
Proper proportions of the fireplace opening and flue are among the most essential features of fireplace construction. The larger the opening, the larger the fire may be and the more air required or taken from the room for proper combustion, provided the flue is large enough to give sufficient draft. In the average home, the actual inside area of flue should never be less than one-tenth of the area of the fireplace opening. Each fireplace should have its own individual flue carried full size to the top of the chimney without connections of any kind from other sources. A low, broad opening is preferred to a narrow, high one, and splayed sides are best in any case, because better draft and radiation are thus secured. A low, broad opening will catch the smoke better and direct it up the chimney.
The following dimensions for fireplaces are considered good practice:
Fireplace Openings
| Width | Height | Depth |
| 2'-8" | 2'-4" | 17" to 21" |
| 3'-0" | 2'-4" to 6" | 21" |
| 4'-0" | 2'-8" | 21" to 25" |
Arched openings may be higher than indicated in the above dimensions, as their average height may be taken as the top line of the opening.
The ideal form of a fireplace would be a cone with all sides tapering to the apex for the escape of smoke. Therefore, to approach this ideal in practice, the sides of the fireplace are splayed and the back curved forward as shown in Figs. 36 and 37. This forward curve of the back throws the smoke from the fire forward to a throat 4 inches wide, extending the full width of the opening at the front and top of the fireplace, and at the same time forms a shelf above for the deflection of down drafts in the chimney. The rear wall of the fireplace should never be straight, having the throat at the rear, as down drafts would be sure to blow smoke and dust into the room.
Always place a damper in the throat for regulation of the draft. The damper should completely fill the throat. There are many dampers on the market that also serve the purpose of a lintel for the brickwork, giving a smooth surface for the exit of the smoke. These patent combinations of damper and throat give a good draft, prevent smoke, and deserve a more general use.
Especial care should be taken in laying up the brickwork above and around the damper. The joints should be well filled, and nowhere should there be less than an 8-inch thickness of brickwork unless protected by the flue lining.
Immediately above the damper, the brickwork should be corbeled in both ways to the size of the flue lining, which should always be started on a line with the middle of the fireplace and run vertically for one length. It then may be jogged over to the location desired on the floor above. It should be started as low as possible as this is the hottest part of the chimney.
The back and sides of the fireplace, as well as the back portion of the hearth are usually built of fire brick. Certain kinds of face brick are suitable for this purpose and have been used by architects with very artistic results.
The hearth may be either of face brick or tile. If of brick, they should be preferably smooth so as to facilitate cleaning. They may be laid either on edge or flat in a variety of patterns. Two examples of brick hearths are shown in Figs. 38 and 39, one with the brick set on edge and the other with the brick laid flat. Tiles may be of any size and laid in various patterns, and if suitable, may be used also in the back portion of small hearths. The mortar joints of the hearth should be thin and preferably of a fire clay mortar, though pure cement mortar will answer the purpose. Wherever possible, an opening and ash chute in the back hearth, with a pit and iron cleanout door in the basement, should be installed.
Always build the fireplace in the rough first, leaving the brick facing and hearth to be finished after the plasterer has completed his work. The accompanying designs, A, B, and C, suggest various methods of treatment.
Outside Ornamental Features
The possibilities of the use of brick for floors, walks, steps, pergolas, gate posts, seats, and - 31 - other places about the house and garden are unlimited. For outside work it is a most permanent and beautiful material which never cracks or decays requiring periodic repairs or painting such as other materials do. It may always be the same color and texture as the brickwork of the house, thereby linking the house and garden together into one harmonious whole.
Brick steps, except where supported by the foundation wall, as shown in our working drawings, should always be laid over a concrete slab, reinforced, unless resting on solid, undisturbed soil. The concrete slab is poured in the form of steps, to correspond to the finished brick steps, but with proper allowance for laying the brick flat or on edge in a cushion of sand, at the option of the owner. Figs. 40-42 illustrate different pitches of steps and methods of setting the brick. Great care should be taken in the laying of brick steps, if they have to withstand severe usage. The joints should all be filled with a rich cement mortar composed of one part cement to two parts sand.
![]() |
![]() |
![]() |
Fig. 40. Steps with End-set Treads |
Fig. 41. Steps with Flat-set Treads |
Fig. 42. Steps with Edge-set Treads |
Brick walks and floors, with the brick on edge or flat, are usually laid on a filling of cinders or sand, but if subjected to hard use, they should be placed on a bed of concrete the same as steps. Two favorite patterns of edge set brick are shown in Figs. 55 and 56. The brick may be laid flat in the same patterns, but the effect is not quite so pleasing. The joints in the brick walk or floor are usually filled with sand, swept into place with a broom so as thoroughly to fill the joints, but they may be filled with cement grouting if desired. The thin grouting is carefully poured into the joints after the brick are laid, and all grouting that spills on the surface of the brick cleaned off before it hardens. The borders of the walk or floor may be made of brick set on edge or on end; or, if preferred, of concrete, especially when the walk or floor is placed on concrete. If it is desired to prevent grass and moss from growing in sanded joints, mix salt with the sand before filling the joints.
For pergola posts, brick imparts a feeling of strength and solidity, yet care must be taken not to make the posts too large, as they will be entirely out of fit proportion to the light wooden rafters and vines which they support. In most cases, a post 12 inches square will be about the right size. Foundations for these posts should always extend below the frost line and be of brick or concrete. A long, one half inch steel rod with nuts and large washers at each end should be imbedded about 18 inches in this foundation and extend beyond the top of the finished post. The brickwork of the post above grade should be one - 32 - brick thick, laid in cement or cement-lime mortar giving a hollow space 4 inches square in the center of the 12-inch post. As the work progresses this space is filled with concrete around the rod, which, passing through the center, binds the brickwork together in a solid, reinforced mass (Fig. 43). The cap of the post may be either brick, stone, or concrete placed when filling the interior. The wooden girders of the pergola may now be bolted to the post by means of the bolt projecting above the top.
If conditions or design demand a heavier post than 12 inches square, as in Fig. 44, no steel rod reinforcing will be necessary for stability.
Gate posts are usually lower and heavier than pergola posts and made stable enough to carry whatever weight the iron or wooden gate may demand. Large driveway gates (Fig. 45) should have a steel I-beam or angle placed in the center of the post and extending from the bottom of the foundation to the top of the post. The anchors for the support of the gates should be riveted to this steel beam or angle so that no undue strain will be exerted on the brickwork. The brickwork should always be laid in cement or cement-lime mortar. If ornamental caps are desired, they should be of stone or concrete. On large posts, it is desirable to lay brickwork in some natural bond as this not only increases the rigidity of the post but gives a beautiful effect.
Long, straight garden walls under 4 feet in height may be built 8 inches thick; over 4 feet high they should be 12 inches thick. If the walls are snort or reinforced at intervals with buttresses they may be only 8 inches thick provided they are not carried up over 6 feet. A footing is not needed but the foundation of common brick should extend below frost line. The wall should be finished on both sides with face brick, laid with cement-lime mortar in a natural bond, and should have a brick rowlock coping laid in rich cement mortar. Fig. 45 gives an idea of a garden wall with soldier base and rowlock coping.
Bond in brickwork is the overlapping of the brick one upon the other, either along the length of the wall or through its thickness, in order to bind them together into a secure structural mass. It is true, mortar is used to cement the brick together into a monolithic whole, but the real bond is the overlapping of the brick which the mortar serves to maintain. Units are shifted back and forth so that the vertical joints in two successive layers or "courses" do not come into line; in other words, the brick are laid so as to break joint, the whole forming a natural bond or a structural unity giving strength to the wall.
The strength and rigidity of a wall due to this bonding are clearly shown in Fig. 46. A concentrated load at any point on the wall is thus distributed over a larger area as indicated by the dotted arrows.
In speaking of brick bond, two terms are constantly recurring, viz., "stretcher" and "header." When a brick is laid lengthwise of the wall, thus showing its long, narrow dimension or "face" on the surface, it is called a stretcher. If its length extends back into the wall, so that its short dimension shows on the surface, it is called a header. The stretcher secures strength in the length of the wall. The header serves to form the transverse bond, that is, the strength of the wall through its thickness. When a brick is broken, as the case may require, the fragment is called a "bat." Bats are used either simply to fill in; or, as definite sized pieces, cut and used to make the bond come out right, in which case they are called "closures." While at certain points of the wall bats may be necessary, they should be sparingly used and then only according to the best practices of the craft.
In the old days, and indeed up to comparatively recent times, brick bond was used only in a structural or natural way, that is, to secure the strength of the wall as a solid mass; but in the seventeenth century European builders began to see an artistic possibility in the bond as it appeared on the surface. They began to see the fine tracery of the mortar joint running over the background of the brick, which could be varied into attractive patterns by different arrangement of the brick bond. As a consequence, there have been developed, in the main, three different types of bond, Running or Stretcher, English, and Flemish, which are used at the present day, with various modifications, to secure attractive effects in pattern.
When, as compared with the past, the great variety of brick colors and textures now offered is taken into consideration, it may be realized what charming results may be secured in the wall surface by the combination of brick patterns, colors, textures, and mortar joints.
The first and most obvious of these bonds is what is called Running or Stretcher Bond. The wall surface is made up of stretcher courses having at the corners a header which appears as a stretcher on the return side. This bond has the merit of being very strong longitudinally, but lacks transverse strength; consequently, it is modified into what is called Common or American Bond by laying a course of headers about every sixth course (Fig. 47). In order to maintain the effect of the running bond, a special double header bond is sometimes used as explained on page 19.
This method of using headers as in Common or American Bond, in order to secure transverse strength of wall, can be treated in a way to - 34 - produce very much more pleasing effects, as may be seen in the English and Flemish Bonds.
The English Bond is made up of alternating courses of stretchers and headers (Fig. 48). This produces a very pleasing series of Greek crosses and ripple lines up and down the surface of the wall, and the English brickbuilders claim for it the great merit of giving transverse strength to the wall. It however has a certain monotony that has lead to a modification which greatly beautifies it as a pattern, by breaking the joints of the successive stretcher courses (Fig. 49). This is called English Cross or Dutch Bond and results in a very attractive pattern in the wall of Greek crosses running in diagonal lines. The Dutch Bond differs from the English Bond only in the way the corners of the wall are treated.
The Flemish Bond (Fig. 50) secures its effect by laying each course in alternate stretchers and headers, the header resting upon the facile of the stretcher in successive courses. This produces a very attractive pattern of inlaid Greek crosses and is a favorite among builders because of its artistic effect. It also may be modified in various ways by shifting the stretcher or header so as to produce different pattern effects, thus the Garden Wall Bond so-called (Fig. 51), is made by laying the courses with from two to four stretchers alternating with a header.
Figs. 47-51, illustrating the above bonds, are all drawn to show both exterior and interior corners of a wall, which is drawn as a two-brick wall at the left end and a three-brick wall at the right. The inside face of the three-brick wall in all cases is bonded to the middle tier by Common Bond. The method of starting the bond at the corner is clearly shown, whether by a quarter, half, three-quarter, or whole brick, also how the brick are cut or clipped, and how closures are used.
With these three fundamental bonds—the Running or Stretcher, the English, and the Flemish, innumerable other patterns may be made by the simple device of shifting the stretcher or header in successive courses back and forth, always breaking the joint, that is, never permitting two successive vertical joints to lie in the same line. To illustrate, we give examples of diamond-shaped patterns in Figs. 52 and 53 which are - 35 - secured by a modification of the Garden Wall Bond. It is, however, only in case of large wall surfaces that patterns of an elaborate character could be recommended; ordinarily, the three bonds mentioned, with their simple modifications, will cover all requirements of domestic architecture. Simple patterns in brickwork may be made very attractive. Any departure from simple bonds adds to the cost of the bricklaying.
In addition to bonds proper and the patterns that may be woven out of them, there are certain other pleasing ornamental effects that may be secured in the wall surface by the arrangement of the brick. Thus for a water table or a sill course, the header or the stretcher may be set vertically. Treated in this way headers are called "row-locks" and stretchers, "soldiers" (see Figs. 44 and 45). For dadoes and friezes or for paneling, especially on large surfaces, patterns of a simple or ornate design may be used, as in Figs. 52-56.
In examining the bond in a brick wall, the eye naturally is first attracted to the brick units as so many colored spots arranged in different order so as to produce a certain pattern effect; but this pattern effect in the brickwork depends very largely upon what at first may be overlooked or disregarded, the mortar joint. The mention of mortar suggests in the mind a very commonplace thing which the workman mixes and carries in a hod to the bricklayer; but it is concave one of the most important elements entering into the beauty, as well as the strength, of a brick wall.
When you consider that all the joints in brickwork, both vertical or "head" joints, and horizontal or "bed" joints, are filled with mortar weathered of one color or another, amounting on an average to one-seventh of the wall, it is evident what a vital part they play in the appearance of the entire wall surface. An artist will tell you that this amount of color introduced into any surface will greatly modify, by contrast or analogy, the general effect, so that it is of the utmost importance, in selecting the sort of brick you wish for your wall surface, that you also select the mortar joint.
Three elements must be carefully considered in dealing with the mortar joint: its color, its texture, and its size and kind. The color of the mortar joint may be such as entirely to destroy the beauty of the brick. On the other hand, if it is properly chosen, it will bring out the fine shades and tones of the brick in such a way as to enhance very greatly its natural beauty. Then, the mortar joint has a certain texture which is produced either by finishing it rough or smoothing it with the trowel or a tool made for that purpose. This mere treatment of the surface of the mortar joint has more to do with the appearance of the wall than one might at first suppose. In addition to that, the size of the mortar joint, running from a thin "buttered" joint up to an inch in width affects the color relation of the whole surface; and the kind of joint, whether cut flush, raked out, or tooled in various shapes, has - 36 - a distinct bearing on the whole effect (Fig. 57). In a word, do not neglect the mortar joint, for it is one of the most important elements that go to make up the beautiful fabric of the brick wall, in the building of which there is deserved and required the exercise of a fine discriminating taste.
All in all, what with the convenient units of stretcher and header, each with its color and texture, you have a medium in the choice of bond, mortar joint, and pattern for weaving the most charming mosaic or tapestry effects into the wall surface, a possibility offered by no other material than face brick.
Mortar Colors
Colored mortar joints may be produced in two ways, first, by the use of a natural colored sand or ground granite or other stone, and secondly, by the use of artificial mortar colors. Pure white joints are obtained by using white sand or ground limestone or marble. As the color of the mortar greatly affects the appearance of the finished wall, much care should be given to the selection and proper use of these colors, whether natural or artificial. As the color of the finished mortar after it has set and dried is never the same as that of the fresh mortar, experience is the only guide for the proper preparation of the mortar. Someone has well said that the right way to make mortar is to mix brains with it.
When artificial color is used, it should first be thoroughly mixed with the dry sand. Never add this mixture to hot lime. But after the slaked lime has thoroughly cooled, mix it with the colored sand in batches in a separate box. If preferred, the color may be made into a thick paste with water and then added directly to the mortar. In either case, thorough mixing and uniform proportion of quantities are essential. The more thorough the mixing and uniform the proportions, the more permanent and uniform will be the color and the less color required. Use the best colors obtainable on the market, as cheap colors may ruin the appearance of the wall.
As to quantity required, the exact amount of color varies greatly with the exact shade of the color selected, the width of the mortar joint, and the brand used. As a fair general estimate, it will take approximately 75 pounds of coloring matter for every 1000 bricks laid with 3/8 to 1/2-inch mortar joints. But it is always safest to follow the directions of the manufacturer as to the kind of color and the exact amount required.
Various Kinds of Mortar
Mortar, as the bonding material between brick, must be given careful attention as the strength of the wall depends on its quality. Mortar is composed of sand and either lime or cement, or both. In all cases the materials should be the best. The cement should pass the test of the American Society for Testing Materials. The lime should be either fresh and well-burned lump lime, slaked so as to produce a smooth, puttylike mass without lumps, or the prepared hydrated kind found on the market. The sand should be sharp, clean, and free from foreign matter, and screened through a mesh of the size to secure the proper fineness. For wide joints, the mortar needs, instead of sand, fine gravel of the size required to give it sufficient body.
In large cities the building ordinances require certain mixtures of mortar. For various mixtures see page 104. But where there are no legal requirements, the contractor's own judgment and experience should guide him in the selection of the proper mix, as each one has certain qualities which recommend it. Portland cement mortar is stiffer and harder to work than lime mortar, but should always be used where permanence and strength are required, as in exposed or heavy bearing situations, or in cold weather when the mortar must set before it freezes. Lime mortar may do for the usual work, above the grade in dry warm climates. It should not, however, be used for basement walls, except possibly where the soil is extremely dry, nor for piers or points in the wall that carry heavy loads. It is smooth and works easily, so that more brick can be laid per day than with cement mortar, but its use should be limited to the proper situations. Cement-lime mortar has the combined qualities of both cement mortar and lime mortar. It has both strength and good working qualities, and costs less than cement mortar. It is preferred by many to cement mortar; we recommend its use in proper situations, throughout this Manual.
Cement mortar must be mixed and used immediately, as cement sets very quickly. On this account, it should not be made in large quantities and, once it has obtained a partial set, should never be re-tempered. The cement and sand for cement mortar should be thoroughly mixed while dry, by turning the material over three or four times with a shovel, when sufficient water to make a plastic mass should be added, turning again several times. It is always desirable to add a small quantity of lime, when tempering - 37 - the cement mortar, in order to make it easier to work.
Lump lime should be slaked as soon as possible after delivery on the job. If it is allowed to stand for any length of time, it should be stored in an air-tight box; otherwise, it may become air slaked, reducing mostly to powder and soft, crumbly lumps. The fresh lime is always in hard lumps and should be free from cinders. Lime is slaked in a mortar box by adding water to the lump lime. On adding water the lime becomes very hot, gives off vapor, and finally burst into a powder which gradually reduces to a paste known as lime putty. The exact amount of water necessary varies with different limes, but in all cases, the right proportions used in slaking must be watched carefully. An excess of water will stop the slaking process. If not enough water is used the lime will "burn" and lose its strength. If left overnight, the mortar box should be covered with planks.
When slaking is completed, the lime is reduced to what is called "putty", which should be of uniform consistency throughout, containing no unslaked lumps. The sand should now be added, the exact amount depending upon the quality of mortar desired, and thoroughly mixed with the putty, and then shoveled out on wooden planks where it should remain for at least a week before using.
Hydrated lime is in powdered form and needs no other preparation than the addition of water. Its quality is uniform and produces satisfactory results, even when experienced labor cannot be obtained, and may be used at once on the job. Its uniformity and the facility it gives in handling the mortar make it preferable to lump lime although it costs somewhat more.
The mixing of cement-lime mortar is very simple, as all that is needed is to add the proper amount of cement to the lime mortar, at the time it is tempered for use, and very thoroughly mix into a consistent mass.
Working the mortar and adding water to bring it to proper consistency for actual use on the job is called tempering, a process that should be continued until the mortar slides easily off the trowel. All white spots, which are really small lumps of lime, should be made to disappear; otherwise, these lumps will swell and "pop" after the mortar is laid in the wall.
The loss by fire which the people of this country suffer every year, both in human lives and in property values, is appalling. The loss of life, according to conservation estimates of the National Board of Fire Underwriters amounts to 15,000 persons annually, and the destruction of property approaches an average of a quarter of a billion dollars every year. This certainly is a fearful tribute to pay for our criminal negligence and mistaken economies.
We have recently been learning the science and art of war from Europe to combat unjust aggression, but we have a much better lesson to learn from the older country in our fight against the ruthless fire fiend. Making all allowance for difference in the purchasing value of money between Europe and America, it still speaks ill for our good sense that we, over a hundred million strong, besides enduring all the suffering involved, should allow our National "ash heap" to cost us upwards of $2.00 a piece, when the European countries manage to get through on a per capita cost of from 11 to 49 cents. The Demon of Carelessness may account for much of this inexcusable difference, but our mistaken sense of economy, in using cheap, combustible types of construction, is largely to blame.
The cure for this disgraceful status in our fire losses should not be left entirely to municipal ordinances and fire insurance requirements, but should begin with every individual who builds a home. He should make it his first concern to see that his house is as completely protected from fire as possible, not only for the safety of himself and family but also for that of the community in which he lives and of which he should form a responsible part.
Therefore, brick as a building material makes the strongest sort of appeal to your prospective clients because of its entire proofness against fire.
Every brick you put into a house is fireproof, so that the more brick you use, the more completely is the house free from the risk of fire. But in situations where brick are not or cannot be used in house construction, as much protection against fire as possible should be secured.
As the roof is always a very vulnerable part of the house, in case of outside fires, it should be covered with a non-combustible or fire-resisting material such as shingle tile, slate, asbestos, or asphalt. This will not only reduce insurance rates but will complete the house consistently with the permanent fireproof nature of face brick wall construction.
Serious consideration should be given this point when planning a house; for, by adopting a roof of this character, each individual owner not only guards his own welfare but helps to reduce the enormous annual fire loss in this country which rests as a burden upon everyone.
The wooden shingle roof is just so much tinder ready to be set ablaze by an adjacent fire or a flying firebrand and in turn throws off similar sparks which are carried by the wind, thus communicating fire from one house to another.
Shingle tile, slate, and asbestos are the most fireproof as well as the most expensive in the group of permanent roof coverings. They are heavier than the wooden shingle and generally require a stronger roof construction to support them. Each has artistic qualities of its own in the way of permanent textures and colors which recommend it. Asphalt shingles, while not fireproof, are fire-resistive to a very great degree. They do not support combustion, cannot be set afire by flying brands, and thus retard the spread of fire. They are light in weight and can be placed over the same roof construction as the wooden shingle. We strongly recommend the use of any of the above mentioned roof materials in connection with a face brick house.
As a general approximate estimate, we might say that a slate roof of 3/16-inch commercial slate would increase the cost of the house two per cent, as compared with the use of a wooden shingle roof. Shingle tile would cost perhaps a little more than slate, while asbestos shingle would come a little less. Asphalt would cost no more than wooden shingles, perhaps not quite so much. But we suggest your seeing the local dealer who will gladly furnish all information on these different materials as to durability and exact local cost.
According to the figures of the National Board of Fire Underwriters, the relation of outside to inside fires, for 1916 to 1918, is presented in the table given below. The figures for 1919 were not compiled at this writing but the ratios would doubtless run about the same, and the lesson is obvious. If the 25 to 30 per cent of fires started from without call for fire-safe exterior construction, the 70 to 75 per cent of interior fires demand special care against fire within. Much of the interior of a house is of burnable material, and the matter becomes very serious when it concerns the wooden floors and partitions which in case of fire may be consumed, resulting in the total collapse of the interior. These portions may be protected from the attack of fire by the use of a first-class metal lath or even gypsum plaster board, as a base for plastering, which would at least retard the fire from spreading until it could be subdued and put under control.
Instead of protecting the entire interior by metal lath or gypsum board the desired result may be obtained by using it in certain places considered most hazardous. First of all, the frame bearing partitions through the middle of the brick or tile house, which are the main supports for the floors above, and ceilings under inhabited floors, should be protected; and, in case of veneer construction, similar treatment on the inside surface of exterior walls would add greatly to the safety and value of the house.
As fires may originate in the ceiling over the heater and coal bins, at chimney breasts, and around flues, metal lath or gypsum board at these points would retard the spread of fire; and its use around, but especially under, stairs would give a far safer exit from the upper story of the house.
Having built a face brick house for your client, as the most substantial and attractive construction to be had, protected on the outside with a roof of permanent material, and on the inside with fire-resistive material at the weakest points, you have given him the best possible value for his money, in a structure at once beautiful, enduring, economical, and safe against fire.
Outside and Inside Causes of Fire
| 1916 | 1917 | 1918 | ||||
| Claims | Loss | Claims | Loss | Claims | Loss | |
| All Causes | 361,742 | $208,705,340 | 356,896 | $231,628,000 | 328,737 | $283,103,101 |
| Outside Causes | 114,900 | 56,684,837 | 88,549 | 61,971,156 | 104,622 | 79,947,935 |
| Outside Causes Percentage | 31.76% | 22.36% | 24.81% | 26.75% | 31.83% | 28.24% |
The thirty-one face brick houses here shown were designed for us by Messrs. Dean & Dean, well-known architects of Chicago, who have been especially successful in planning the small house. To get the effect of various color-toned brick, we had the architects' perspectives done in oil, and were fortunate enough to secure for this purpose the skillful hand of Mr. Alfred Juergens, an artist who has won an enviable reputation in this country for his exquisite color work. While the reproductions, here presented, cannot adequately give the effect of the originals, they fairly represent the possibility of beautiful color effects in brickwork.
If you study the floor plans carefully, you will find them modern in arrangement and conveniently planned so as to save steps for the woman of the house. This economical interior arrangement also effects an economy in cost of construction. The dimensions of the rooms are shown, also the location of the furniture is suggested, helping more than anything else to visualize the size and proportions of the plans. The lighting outlets, switches, and receptacles are indicated according to the table of symbols given below.
The full working drawings, done at a scale of one-quarter inch to the foot, include floor plans, elevations, and all necessary details. The elevations show the size and shape of all windows, doors, cornices, porches, steps, chimneys, and the pitch of all roofs. The plans give the size of all rooms and closets, the location of all doors, windows, stairs, plumbing fixtures, cabinets, lights and heating registers, and are fully dimensioned. The details drawn to a larger scale include sections of all interior trim, kitchen or pantry cabinets, and sections through the exterior wall, giving story and window heights.
One of the special merits of these drawings is that three wall sections are given for each house, showing the complete wall construction for solid brick, face brick on hollow tile, and face brick on wood studs.
This feature is valuable as the purchaser may build the house according to the method of construction he wishes; he is also thus put in a position to obtain figures each way to determine for himself the costs of the different types of construction in his locality.
The specifications give full description of all materials and items not usually shown on the plans. They are very clear and explicit, so that there can be no possibility of misunderstanding. Such items as kind and grade of lumber, interior finish and floor, and kind of brick, are left for the individual to determine for himself, as they are matters of personal preference. Different kinds of roofs are specified, including tile, slate, asbestos, asphalt, and wooden shingle. The owner may strike out from the specifications the ones he does not wish.
The quantity survey is a complete bill of materials for the brickwork, carpentry, and plastering work, with blank columns for the use of the estimator in filling in his prices. This feature is not only of great assistance to the contractor when estimating, but assures the owner that competing contractors are figuring on the same materials. This survey is compiled to list the materials necessary for a house with walls of solid brick, giving at the same time alternative quantities for walls of face brick on hollow tile, and face brick on wood studs.
The quantity survey given is based upon a level lot so that if the house is to be built upon a slope, certain changes will have to be made in the quantities of face and common brick.
It must also be noted that the porch foundations are shown four feet below grade, a depth meeting the average climatic conditions. If the house, therefore, is to be constructed in a warm climate, these foundations need not extend so deep. If in a very cold climate, on the other hand, all foundations may have to be extended to the customary depth for that locality. In either case, the quantity of common brick should be adjusted.
A very valuable feature of these plans and elevations is the fact that each set is drawn in the reverse with a different exterior design, so as to meet the requirements of any location you desire. If, however, you prefer the plans of one set and the elevations of the reverse, order the drawings that way. We will send both elevations, so that for your convenience you can use the figures on the original in place of the reversed figures on the reverse. You thus have in the case of each house three choices, the original, its complete reverse, and its partial reverse.
In locations where no public method of sewage disposal exists, the owner will have to install a disposal system of his own. If this is the case, let us know when ordering your plans, and we will send you, without additional charge, details and description of an inexpensive system of sewage disposal that will fill your requirements. You will find this subject amply treated in Bulletin No. 57 of the U. S. Department of Agriculture on "Water Supply, Plumbing, and Sewage Disposal for Country Houses."
We could not venture to state the total cost of any of the houses shown, as prices not only vary in different localities throughout the country and fluctuate from time to time in the same locality, but each prospective owner's taste would require different materials for both exterior and interior finish, so that it would be impossible to make any definite statement of cost hold good.
We are prepared to supply you with complete working drawings, specifications, and quantity surveys of materials, for any house you may desire, at an extremely low fee. In view of the fact that these instruments are the work of architects of high standing and long experience, the prices indicated in connection with the designs are merely nominal. Additional copies of the plans, specifications, and quantity surveys may be obtained at the following prices: Plans $1.25, specifications $1.25, quantity surveys 50 cents. Working drawings with bill of materials of fireplaces shown on pages 30 and 31 will be sent for $1.00 each.
We shall be glad to be of any help we can on points that are not clearly understood.
Four Room House No. 41
An attractive exterior and a cozy interior characterize this house. The living room, exposed on three sides, is light and airy. The cozy corner, formed by the fireplace and stairs, looks out upon the garden. There is a convenient coat closet off the living room near the front entrance. The stairs to the basement are close to the kitchen and have an entrance door at grade giving access to the basement from outside.
The kitchen is large enough for dining purposes, frequently convenient, and has a large porch and pantry.
The second floor is complete with two bedrooms and their closets, a linen closet, and a bath.
Size 15'0" × 28'0". This design and plan are the reverse of No. 42.
Full working drawing, specifications, and bill of materials may be had for $12.00 from The American Face Brick Association, 110 South Dearborn Street, Chicago.
Four Room House No. 42
It is seldom that a small house which comes within the limits of a modest income is as complete as this attractive home. The living room with its open stairway and fireplace, forming an ingle nook, is very cheery.
A coat closet is convenient to the front entrance. The combination kitchen and dining room is well-arranged and has a large pantry and porch.
The two bedrooms on the second floor are exposed on two sides and the closets have windows. The bathroom and linen closet complete the plan.
Size 15'0" × 28'0". This design and plan are the reverse of No. 41.
Full working drawing, specifications, and bill of materials may be had for $12.00 from The American Face Brick Association, 110 South Dearborn Street, Chicago.
Four Room House No. 43
An excellent house, reduced in size so that it represents a moderate investment, yet completely fulfilling the requirements of a small family. As one enters the living room he is greeted by the attractive fireplace opposite. The open stairway at the end of the living room gives exposure on that side so that the room is light and airy. The coat closet is located on the stairs convenient to the entrance. The kitchen is large enough for dining purposes, and is connected with the living room by a good-sized pantry. The basement stairs have an entrance at grade, thereby saving the cost of outside stairs.
The two bedrooms on the second floor are good-sized, have large closets, and exposure on two sides. One of the rooms has an additional closet and there is a fine linen closet off the hall.
Size 19'0" × 26'6". This design and plan are the reverse of No. 44.
Full working drawing, specifications, and bill of materials may be had for $12.00 from The American Face Brick Association, 110 South Dearborn Street, Chicago.
Four Room House No. 44
A very cozy and convenient home for the family of moderate means. The welcome of an open stairway is always pleasing and in this house it serves a double purpose by adding to the apparent length of the room. The kitchen is especially large for this small house and may also be used, if desired, as a dining room. It is connected with the living room through the pantry. Stairs lead to the basement from this pantry with a landing and entrance at grade. There are two rooms on the second floor well supplied with closets, a bathroom, and a linen closet. There is no waste space anywhere throughout the house, every square foot being put to use.
Size 19'0" × 26'6". This design and plan are the reverse of No. 43.
Full working drawing, specifications, and bill of materials may be had for $12.00 from The American Face Brick Association, 110 South Dearborn Street, Chicago.
Four Room Bungalow No. 45
The convenience of a home with all the rooms on one floor is appreciated not only by those who have dwelt in an apartment, but by many others. This small bungalow is very compact and complete. Notice how the bedroom group is secluded from the living quarter. Both rooms have access to the bathroom and linen closet by a private hall. The kitchen being small, saves many steps for the housewife. It is supplemented by a good pantry in which is placed the refrigerator, with an outside icing door. There is an excellent rear porch large enough to be screened in and used, if desired, either as a summer kitchen or dining room. The basement stairs are within the house and have an outside entrance at grade.
Size 28'0" × 30'0". This design and plan are the reverse of No. 46.
Full working drawing, specifications, and bill of materials may be had for $12.00 from The American Face Brick Association, 110 South Dearborn Street, Chicago.
Four Room Bungalow No. 46
An attractive little bungalow with hipped roof, suitable for a small family, and very conveniently arranged.
The bedroom and bath are separated from the living room by a hall. A linen closet at the end of the hall completes this part of the house. The living room is of a good size and is connected with the kitchen by a pantry in which is placed the refrigerator which is iced from the porch. The basement stairs are within the house.
Size 28'0" × 30'0". This design and plan are the reverse of No. 45.
Full working drawing, specifications, and bill of materials may be had for $12.00 from The American Face Brick Association, 110 South Dearborn Street, Chicago.
Five Room House No. 51
A most livable home for a small family. The one large living room, extending from front to rear of this house, makes it appropriate for a location on the south side of the street or with an attractive view to the rear. The kitchen has been combined with the dining room but has the advantage of a door opening through the pantry to one end of the living room which, on occasion, may be used for large dinners, and convenient connection is also made with the front hall.
On the second floor are a bath and three bedrooms with ample closets.
Size 22'2" × 30'8". This design and plan are the reverse of No. 52.
Full working drawing, specifications, and bill of materials may be had for $15.00 from The American Face Brick Association, 110 South Dearborn Street, Chicago.
Five Room House No. 52
A cozy little home, substantial and comfortable. In this plan the living room is larger than usually found in houses of this size, arranged so that the far end, connected with the kitchen by a pantry, may be used, if desired, for dining purposes. The kitchen is of such dimensions and so arranged that it may be used regularly as the dining room, a point readily appreciated by the woman without help. The second floor contains three bedrooms, with the customary closets, and a bath.
Size 22'2" × 30'8". This design and plan are the reverse of No. 51.
Full working drawing, specifications, and bill of materials may be had for $15.00 from The American Face Brick Association, 110 South Dearborn Street, Chicago.
Five Room House No. 53
A very conveniently arranged home. The roomy front porch, all of brick, affords a delightfully cool spot for hot summer evenings. Entrance is through a vestibule to a hall with an open stairway, and a coat closet on the lower landing.
The living room has an attractive fireplace across the corner of the room and wide openings to dining room and hall. There is a large pantry and a good porch in connection with the kitchen. The basement stairs have an entrance at grade, a point readily appreciated in stormy weather. On the second floor there are two very large bedrooms. The closet space is much larger than is found in most houses.
Size 23'0" × 28'8" exclusive of pantry and porches. This design and plan are the reverse of No. 54.
Full working drawing, specifications, and bill of materials may be had for $15.00 from The American Face Brick Association, 110 South Dearborn Street, Chicago.
Five Room House No. 54
A simple design with good proportions and roof lines, and an excellent plan. The living and dining room are connected by a wide cased opening, and the hall is practically a part of the living room because of the large opening between them. There is a coat closet adjacent to the vestibule, and a direct connection from the hall to the kitchen and basement stairs. A large pantry is connected with the kitchen and convenient to the dining room. The entire second floor is devoted to two large bedrooms and a bath. Note the dimensions of the bedrooms and the large closets, also the extra closet in the main bedroom. There is a fine linen room off the hall.
Size 23'0" × 28'8" not including pantry and porch. This design and plan are the reverse of No. 53.
Full working drawing, specifications, and bill of materials may be had for $15.00 from The American Face Brick Association, 110 South Dearborn Street, Chicago.
Five Room Bungalow No. 55
Simple in design, this bungalow requires nothing more than the color and texture of face brick for its success. The arrangement of the plan is excellent and all the rooms are large.
The bedrooms are placed on the corners to obtain light and air from two directions, and have exceptionally large closets. In addition, there are two closets off the hall. The dining and living rooms are connected by a wide cased opening. There is a built-in sideboard in the dining room and an attractive brick fireplace in the living room. Connecting with the kitchen there is a fine pantry with an outside window, a large rear porch and stairs to the basement and attic. The basement stairs have an entrance at grade, very convenient on washday, for garden use, for the removal of ashes, etc.
Size 28'0" × 38'0". This design and plan are the reverse of No. 56.
Full working drawing, specifications, and bill of materials may be had for $12.00 from The American Face Brick Association, 110 South Dearborn Street, Chicago.
Five Room Bungalow No. 56
Country or town, seashore or mountain, this bungalow is suitable for all locations. Cleverly arranged, with fireplace, built-in sideboard, and closets ample in size and number, this plan has much to recommend it. The bedrooms and bath are grouped together and separated from the main rooms of the house by a hall. The main porch is enclosed for all-year-round use. There is a large attic over the entire house.
Size 29'0" × 38'0". This design and plan are the reverse of No. 55.
Full working drawing, specifications, and bill of materials may be had for $15.00 from The American Face Brick Association, 110 South Dearborn Street, Chicago.
Five Room Bungalow No. 57
The pleasing lines of the roof, combined with the color and texture of the brickwork, make this design a success for either town or country use. The porch is recessed under the main roof, an economy in a small house. The living and dining rooms have a large cased opening between them and there is a coat closet adjacent to the entrance.
In the dining room there is a recess for a sideboard. The bedrooms are exposed on two sides and have good closets. The bathroom, placed between the bedrooms, is connected directly with them, an arrangement preferred by many.
The kitchen is equipped with cabinets to take the place of the pantry. The refrigerator is iced from outside.
Size 24'6" × 36'0". This design and plan are the reverse of No. 58.
Full working drawing, specifications, and bill of materials may be had for $15.00 from The American Face Brick Association, 110 South Dearborn Street, Chicago.
Five Room Bungalow No. 58
The very simplicity of this attractive little bungalow makes a strong appeal to some tastes. The recessed porch which may be easily glazed in and used during the winter leads to the living room. The living and dining room are practically one, due to the large opening between them. The bedrooms have the convenience of the bath placed between them. The kitchen has a fine back porch from which the refrigerator may be iced. There are cabinets in the kitchen in place of the usual pantry. Stairs lead from the kitchen to the attic, which extends over the entire house.
Size 24'6" × 36'0". This design and plan are the reverse of No. 57.
Full working drawing, specifications, and bill of materials may be had for $15.00 from The American Face Brick Association, 110 South Dearborn Street, Chicago.
Six Room House No. 61
One can easily imagine the comfort of a house like this. The plan is cleverly arranged and complete. The hall, with its open staircase and view across the living room to the fireplace beyond, will charm the visitor and delight the owner. The passage from the kitchen to the hall or to the basement stairs will be appreciated by the housewife. As in its reverse, No. 62, the convenience of the porch to the kitchen permits outside dining in pleasant weather.
The second floor contains three bedrooms, with closets, a bath, and a large linen closet. All bedrooms are exposed on two sides, thereby securing excellent cross draft.
Size 28'9" × 30'0". This design and plan are the reverse of No. 62.
Full working drawing, specifications, and bill of materials may be had for $18.00 from The American Face Brick Association, 110 South Dearborn Street, Chicago.
Six Room House No. 62
A very pleasing and convenient home for a small family. The low, rakish effect of the roof sweeping down over the porch produces a very charming exterior and should make this design a great favorite. The porch exposed on three sides, affords an ideal summer lounging place. As it covers a kitchen door it may be used in pleasant weather as a dining porch also. The entrance hall opens into the living room with a large cased opening. It has a good coat closet, and connects with the kitchen and basement stairs. The pantry between the kitchen and dining room is very convenient from either room, and is considered by many as an ideal arrangement. The bedrooms on the second floor are well arranged and have large closets. Size 28'9" × 30'0". This design and plan are the reverse of No. 61.
Full working drawing, specifications, and bill of materials may be had for $18.00 from The American Face Brick Association, 110 South Dearborn Street, Chicago.
Six Room House No. 63
An attractive and substantial looking house, with a broad porch suggestive of rest and quiet. The fireplace and open stairway in the living room welcome the stranger and give a feeling of cheerfulness to the home. The dining room and living room are connected by a wide opening. The kitchen is small and conveniently arranged and has a large rear porch. There is a pantry between the kitchen and dining room from which one may go to the basement. The basement stairs have the convenience of an entrance at grade.
The three bedrooms on the second floor are each provided with a large closet. The bathroom is conveniently located at the head of the stairs with a linen closet adjacent. The balcony over the rear porch will be much appreciated as a convenience for domestic purposes.
Size 24'0" × 28'8". This design and plan are the reverse of No. 64.
Full working drawing, specifications, and bill of materials may be had for $18.00 from The American Face Brick Association, 110 South Dearborn Street, Chicago.
Seven Room House No. 64
Because of its convenient arrangement and economical shape, this house should become a great favorite. In addition to the fine front porch there is a good-sized porch in the rear, overlooking the garden. The open stair at the end of the living room is attractive and especial attention is called to the novel pantry arrangement by which one may go to the side entrance or basement.
The second floor has three large bedrooms, each with ample closet room, a bathroom, and a linen closet. Over the rear porch there is a flat deck accessible from the rear bedroom and useful for airing of bedding, beating rugs, etc.
Size 24'0" × 28'8". This design and plan are the reverse of No. 63.
Full working drawing, specifications, and bill of materials may be had for $20.00 from The American Face Brick Association, 110 South Dearborn Street, Chicago.
Seven Room House No. 71
A very popular plan in which the owner gets most for his money. The combination entrance porch and sun parlor is a feature most desired nowadays. The hall, with its open stair, window seat, and large opening to the living room, gives a feeling of spaciousness and welcome.
The kitchen is very conveniently arranged with cabinets, and is connected with the dining room by the pantry. The refrigerator, iced from outside, is placed in this pantry where it is convenient to both kitchen and dining room. There is also a rear stairway from the kitchen connecting with the main stairs midway to the second floor.
The second floor has four corner bedrooms and one bath. Each room has its closet, and there are two closets off the hall.
Size 28'8" × 34'8".
Full working drawing, specifications and bill of materials may be had for $20.00 from The American Face Brick Association, 110 South Dearborn Street, Chicago.
Seven Room Bungalow No. 73
A well-proportioned home of the bungalow type, with the advantage of a commodious second story, having three large bed rooms. This result is made possible by the graceful gambrel roof which dominates the whole design, as it sweeps down over the enclosed porch, and extends across the entire face of the house.
The large openings between the enclosed porch, living, dining and breakfast room give the effect of openness to the house, while the porch and breakfast room may be closed off by French doors. The den is conveniently placed and has a closet so that it can be converted into a bedroom.
The kitchen is compact and has a large porch and pantry arranged so that the refrigerator may be iced from outside. The basement stairs leading from the pantry have an entrance door at the grade, thus obviating outside steps, so frequently filled with snow in wintertime.
The size of the house, 24'8" × 51'0" makes it adaptable to a narrow or a wide lot. This design and plan are the reverse of No. 74.
Full working drawing, specifications, and bill of materials may be had for $20.00 from The American Face Brick Association, 110 South Dearborn Street, Chicago.
Seven Room House No. 74
The unusually graceful roof lines make this a most attractive house and will appeal to the discriminating house owner. The first floor is very well-arranged. The effect of the living and dining room and the two porches thrown together is excellent. The den is a feature desired by many, not alone for such use as office or library, but for an emergency bedroom on the ground floor. The basement stairs are within the house but open on the outside at the grade line, serving the double purpose of outside and inside stairs.
There are three bedrooms with closets, a bathroom, and a storeroom on the second floor.
Size 24'8" × 51'0", including porches. This design and plan are the reverse of No. 73.
Full working drawing, specifications, and bill of materials may be had for $20.00 from The American Face Brick Association, 110 South Dearborn Street, Chicago.
Seven Room Farm House No. 75
To those who admire the bungalow type for a home, this design, which is especially meant for rural localities, should make a strong appeal. Its low, horizontal lines immediately suggest "hominess," enhanced by the winter scene in which it is depicted. The first floor provides in two good-sized bedrooms accommodations for the family, while there are two bedrooms with closets and a bath on the second floor for farm help or guests. The house is of the economical rectangular type and is so arranged that all the rooms are large, light, and airy.
Although primarily designed for the farm, this house is quite adaptable for town use.
Size 28'0" × 48'0". This design and plan are the reverse of No. 76.
Full working drawing, specifications, and bill of materials may be had for $20.00 from The American Face Brick Association, 110 South Dearborn Street, Chicago.
Seven Room Farm House No. 76
In this charming house both the beautiful and practical have been attained to a high degree. The porch is exposed on three sides and is glazed in for winter use. The well-proportioned roof and the half-timber gables instantly catch and hold the eye. The first floor has been planned for the farmer and his family, while the second floor is specially fitted for the farm help, being complete with a separate bathroom. The stairway from the second floor descends to a side entrance from which access is had to the dining room. The living room is larger than found in most houses, and has a large open fireplace at one end with a nook and seat at the other. Especial attention is called to the arrangement of the bedrooms on the first floor. The kitchen is large enough for dining purposes, with a well-arranged pantry. There is a good-sized storeroom in the unoccupied part of the second story.
Size 28'0" × 48'0". This design and plan are the reverse of No. 75.
Full working drawing, specifications, and bill of materials may be had for $20.00 from The American Face Brick Association, 110 South Dearborn Street, Chicago.
Eight Room House No. 81
A unique and rambling design with an excellent plan. The wide, overhanging eaves and gentle slope of the roof give dignity as well as charm to the house. The plan speaks for itself. It is open, light and airy. The hall, pantry, and kitchen arrangement has been very cleverly worked out. There are two stairs, one from the hall and one from the pantry that meet on a common landing and continue to the second floor. The side entrance, giving access to the basement stairs and the first floor is very convenient, with closet under stairway at entrance for general use.
The second floor has four bedrooms and two baths. One bathroom is connected with one of the bedrooms and the other contains a shower stall in addition to the tub, a feature worth considering. This plan is especially adapted to a narrow lot, although it may be turned in any direction desired.
The size is 24'9" × 47'0". This design and plan are the reverse of No. 82.
Full working drawing, specifications, and bill of materials may be had for $22.00 from The American Face Brick Association, 110 South Dearborn Street, Chicago.
Eight Room House No. 82
Stately and dignified, a splendid example of the modern American home. The lines of the roof and fine proportion of the gables are very effective from all angles. The plan is simple. The rooms of the first floor are all open, giving a feeling of spaciousness. The hall, large and light, with its open staircase, is at once the keynote of the whole house, welcoming all who may enter. For convenience, a rear stairway leads from the service pantry to a landing over the side entrance where it joins the main staircase. The kitchen is of a good size, not too large, and has a fine rear porch. There is a closet under stairway at entrance, for general use.
Of the two bathrooms on the second floor, one is directly connected with one of the bedrooms. This arrangement meets the convenience of the family as well as that of guests or boarders.
The size of the house is 24'9" × 47'0". This design and plan are the reverse of No. 81.
Full working drawing, specifications, and bill of materials may be had for $22.00 from The American Face Brick Association, 110 South Dearborn Street, Chicago.
Eight Room Farm House No. 83
A good type of farm house fitting snugly into the landscape. As in case of No. 84, it would also suit well as a country town boarding house. The large living and dining room is connected with the kitchen by a pantry. The six bedrooms may be used either for a large family or, if desirable, the upper rooms might be set aside for the help. Two baths, one on each floor, are necessary in an arrangement of this kind. There are ample closets and linen space. The porches are adequate.
Size 26'6" × 38'8". This design and plan are the reverse of No. 84.
Full working drawing, specifications, and bill of materials may be had for $22.00 from The American Face Brick Association, 110 South Dearborn Street, Chicago.
Eight Room House No. 84
This commodious house may be used admirably for either a boarding house in a country town, or a farm house when accommodation is desired for the help. The living and dining room has been made especially large on this account. There are four bedrooms with a bath on the second floor. There are two bedrooms with bath on the first floor. The rear porch is exceptionally large, being designed for family use, while the front porch is for the boarders or the help. There are both inside and outside stairs to the basement, a very desirable convenience.
Size 26'6" × 38'8". This design and plan are the reverse of No. 83.
Full working drawing, specifications, and bill of materials may be had for $22.00 from The American Face Brick Association, 110 South Dearborn Street, Chicago.
Nine Room House No. 92
A striking house for a village street, and yet quite appropriate for a country home. The porch, an outstanding feature of the modern American home, is here partly enclosed, forming a sun parlor for all-year-round use. From the reception hall with its open stairway and hall seat, one obtains an attractive view, across the living room, of the fireplace opposite. Likewise the vista from the dining room to the sun parlor is quite as charming. The kitchen is arranged with cabinets in addition to the pantry, and has the convenient feature of a stairway leading up to a landing where it meets the main stairs midway to the second floor.
The second floor arrangement is simple. The rooms are large and the closets ample, without an inch of waste space. There are two bedrooms with closets, and a bathroom on the third floor, not shown on these plans.
The size of the house is 28'8" × 34'8" exclusive of porches and pantry.
Full working drawing, specifications, and bill of materials may be had for $22.00 from The American Face Brick Association, 110 South Dearborn Street, Chicago.
Nine Room Farm House No. 93
A well-proportioned house with fine roof lines and charming brickwork which should arouse admiration throughout the country-side. It has been designed for the farmer and provides for the help.
There are two bedrooms with separate entrance and bath on the first floor, connected with the dining room. The living room, dining room, and porch form a very convenient group. The kitchen has a large pantry and a separate grade entrance on the basement stairs inside the house, a decided convenience.
Four bedrooms, with a closet each, a bathroom, a linen room, and a large storeroom, amply provide for the family.
Size 30'6" × 38'6". This design and plan are the reverse of No. 94.
Full working drawing, specifications, and bill of materials may be had for $22.00 from The American Face Brick Association, 110 South Dearborn Street, Chicago.
Nine Room Farm House No. 94
A simple, dignified home, relying for its beauty upon its proportions and the exquisite charm of the brickwork. It has been designed with the farmer's needs in view. The living room, with its low, open fireplace adjoins the dining room and both open directly on the main porch. The kitchen, which is large and conveniently arranged, may, on occasion, serve as a dining room for the family, and is provided with a commodious pantry. The basement stairs are inside the house, an appealing feature in cold or stormy weather. Particular attention is called to the bedroom arrangement, which provides two bedrooms on the first floor for the farm help, complete with closets, bath, and linen room. There is an individual entrance from outside and direct communication with the dining room, a feature readily appreciated by the woman on the farm.
The second floor is devoted to the family sleeping rooms, with exceptionally large closets and an ample storeroom. Size 30'6" × 38'6". This design and plan are the reverse of No. 93.
Full working drawing, specifications, and bill of materials may be had for $20.00 from The American Face Brick Association, 110 South Dearborn Street, Chicago.
Four Flat Building
This building has been planned for a seventy-five foot lot, which, together with its specially planned form, would give a maximum of light and air. A party wall divides the building so that either half, complete in itself, might be sold separately.
The hall, living, and dining rooms form a pleasant group. Particular attention is called to the arrangement of the bedrooms, which together with the bathroom, are isolated from the balance of the house. An inside stairway leads to the basement from the first floor. The rear porches which too often are quite unsightly on the rear of the building, are here recessed between the bedroom wings, a feature which also gives considerable protection to the porches in the winter months. The second floor is the same as the first except that there is an additional bedroom, 8'8" × 10'3" in each flat, over the entrance vestibules.
Full working drawing, specifications, and bill of materials may be had for $25.00 from The American Face Brick Association, 110 South Dearborn Street, Chicago.
Mortar Mixes for Laying 1,000 Brick, 1/8" Joint
| PROPORTIONS | QUANTITIES | ||||
| Cement | Lime | Sand | |||
| Cement Mortars | 13/4 bbls. optional |
1/4 bbl. optional |
1/2 cu. yd. | ||
| 1 | part | cement | |||
| 2 | parts | sand | |||
| 1 | part | cement | 13/8 bbls. | 1/4 bbl. optional |
1/2 cu. yd. |
| 21/2 | parts | sand | |||
| 1 | part | cement | 11/8 bbls. | 1/4 bbl. optional |
1/2 cu. yd. |
| 3 | parts | sand | |||
| Lump Lime Mortars | 7/8 bbl. | 1/2 cu. yd. | |||
| 1 | part | lime | |||
| 2 | parts | sand | |||
| 1 | part | lime | 3/4 bbl. | 1/2 cu. yd. | |
| 21/2 | parts | sand | |||
| 1 | part | lime | 5/8 bbl. | 1/2 cu. yd. | |
| 3 | parts | sand | |||
| Hydrated Lime Mortar | 31/2 sacks | 1/2 cu. yd. | |||
| 1 | part | lime | |||
| 2 | parts | sand | |||
| 1 | part | lime | 3 sacks | 1/2 cu. yd. | |
| 21/2 | parts | sand | |||
| 1 | part | lime | 21/2 sacks | 1/2 cu. yd. | |
| 3 | parts | sand | |||
| Cement-Lime Mortars | 1/2 bbl. | 1 sack hydrated, or 1/4 bbl. lump lime |
1/2 cu. yd. | ||
| 1 | part | cement | |||
| 1 | part | lime | |||
| 6 | parts | sand | |||
| Grout for 3/16"-1/4" Joints | approx. 3/4 bbl. |
approx. 1/3 cu. yd. |
|||
| 1 | part | cement | |||
| 3 | parts | sand | |||
Mortar Mixes for Laying 1,000 Tile, 1/2" Joint
| Size of Tile | Cement | Lime | Sand |
| 4" × 5" × 12" | 12/3 bbls. | 1/4 bbl. | 2/3 cu. yd. |
| 8" × 5" × 12" | 3 bbls. | 1/2 bbl. | 11/3 cu. yd. |
| 4" × 12" × 12" | 13/4 bbls. | 1/4 bbl. | 3/4 cu. yd. |
| 8" × 12" × 12" | 41/4 bbls. | 1/2 bbl. | 13/4 cu. yd. |
The above quantities are based on a 380 lb. barrel of Portland cement; a 180 lb. barrel of lump lime, and a 50 lb. sack of hydrated lime. Portland cement is sold by the bag or barrel. A bag of Portland cement weighs approximately 94 pounds. Four bags make one barrel of approximately 380 pounds. Lump lime is sold by the bushel or barrel. A bushel of lump lime weighs approximately 75 to 85 pounds. A barrel of lump lime weighs approximately 180 pounds, and equals 4 sacks of hydrated lime. Brick joints other than 3/8" will require about 1/3 more or less mortar for each 1/8" difference.
Estimating Quantities of Face Brick
The dimensions of the standard size face brick adopted by the American Face Brick Association are 8" × 21/4" × 33/4"; but sometimes, due to special conditions in the clay or the kiln burn, these brick may slightly vary from the dimensions given. Besides, there are other sizes of brick used, such as pavers, Romans, etc., so that the contractor should always ascertain the exact size of the brick specified, whether standard size or not, and take into consideration the width of mortar joint desired, in order to calculate more accurately the number of bricks required for a given wall area.
The following table gives the number of standard size brick per square foot of wall surface, 4 inches or one brick thick, estimated for different widths of mortar joint up to 3/4-inch:
TABLE 1
Number of Face Brick per Square Foot
| Joint | 1/8" | 1/4" | 3/8" | 1/2" | 5/8" | 3/4" |
| No. of Brick | 71/2 | 7 | 61/2 | 61/8 | 53/4 | 51/2 |
The method employed in getting these numbers is very simple and may be applied to any sized brick and joint whatsoever. Thus, take the brick given in the accompanying illustration (Fig. 58) and let us use, say, a 3/8" mortar joint. This makes a length of 81/4" + 3/8", or 85/8" and a height of 23/8" + 3/8" or 23/4". Hence, the total area occupied in the wall by this brick, with its mortar joint, is 85/8" × 23/4". You can work this out by tractions, thus, 69/8 × 11/4 = 759/32; or by decimals, thus, 8.625 × 2. 75 = 23.72, the area of the brick and mortar joint in square inches.
In either case, to get the number of brick required per square foot you, of course, divide into 144, the number of square inches in a square foot. That is, 144 ÷ 759/32 = 144 × 32/759 = 4608/759 = 654/759 or about 61/15. Or divide 144 by 23.72 and you get 6.07, which amounts to your previous figure. In estimating the whole number of brick you need, use no fraction less than the eighth next above the fraction obtained in your number for the square foot. Thus in the present example, you will count on using 61/8 brick for every square foot of wall area.
As Table 1 gives the quantities for standard size brick laid in Running Bond, additional allowances must be made for the number of brick when other bonds using headers are employed. The following percentages are to be added to the number of brick required, as calculated by the use of Table 1, when the face brick are laid in the bonds indicated:
TABLE 2
Percentages Added for Various Bonds
| Common (full header course every 5th course) | 20% (1/5) |
| Common (full header course every 6th course) | 162/3% (1/6) |
| Common (full header course every 7th course) | 141/3% (1/7) |
| English or English Cross (full headers every 6th course) | 162/3% (1/6) |
| Flemish (full headers every 6th course) | 52/3% (1/18) |
| Double Header (two headers and a stretcher every 6th course) | 81/3% (1/12) |
| Double Header (two headers and a stretcher every 5th course) | 10% (1/10) |
For garden walls, porch walls, and other places where an 8-inch wall is used, with face brick on both sides, no additional brick are required for any type of bond.
For walks and floors where the brick are laid on edge, in any pattern except diagonal ones, calculate as you would for the number of face brick in a wall laid in running bond. For her- ring-bone pattern or other diagonal work, an additional number of brick will be required to compensate for the clipping of the ends of the brick at the borders. The exact additional amount depends on the total width of the walk or floor, as the wider the surface the smaller will be the average wastage per square foot. Walks and floors where the brick are laid flat require one-third less than the number required where the brick are laid on edge.
Provided with these tables, it is a simple matter to calculate the number of face brick required for every job.
Thus, estimate the total area of wall surface in square feet, deduct all openings, except those 10 square feet or less, and taking into consideration the mortar joint, multiply the result by the number of brick per square foot as shown in Table 1. This will give you the number required for Running Bond. For other bonds simply add to the number of brick obtained for Running Bond the percentages as given in Table 2. Soldier courses make no difference in the count; nor do rowlock courses, if half brick only are used. Although window sills laid rowlock fashion require additional brick, these are amply provided for in the usual allowances for wastage.
If the workmen are careful to use bats for closures, instead of breaking whole bricks, no waste need be figured. The area of the small openings, not deducted in figuring quantities, and the doubling of brick at the corners, will give a certain number of extra brick; and, as it is the usual custom to order the brick to the quarter-thousand next above the actual number figured, the ordinary wastage on the job will be provided for.
If the number of square feet of face brick where there is no common brick or tile backing, such as chimneys, porch walls, steps, floors, etc., is kept separated from the number of square feet of face brick with backing, then the latter number of square feet, once obtained, may be used in figuring the number of common brick or tile required for backing, thus saving the contractor time in estimating.
Estimating Quantities of Common Brick
As the sizes of common brick, for all practical purposes, approximate the size of the standard face brick, their quantity may be calculated on the same basis. Thus, for a single thickness of common brick backing, the number required will be practically the same as that of the face brick laid in Running Bond. If, however, two or more thicknesses of backing brick are used, the proper deductions should be made for the thickness of the walls at the corners.
Two thicknesses of common brick backing will, of course, take just twice the number for one thickness, and so on. In a word, multiply the number required for face brick by the number of thicknesses or tiers of the common brick backing, always considering the turns at the corners, as just indicated. Where other than Running Bond is used in the facing brick, allowance should be made for the common brick displaced by the bonding face brick. The deduction in the number of common brick, it is evident, just equals the increased number of face brick required for the bond selected.
In estimating quantities of common brick for fireplaces, figure the portions projecting beyond the line of the wall, such as breast and ash pit, as if solid, that is, the number of brick for the surface multiplied by the number of tiers deep, and then deduct the number of bricks displaced by all flues and openings, face brick facing, and fire brick lining.
Estimating Quantities of Hollow Tile
Hollow tile for backing, as already indicated, may be obtained in the following sizes:
|
Stock Tile Sizes
4' × 5" × 12" (turned, 5" × 4" × 12") |
When ordering the 5" × 12" tile shapes, which are laid on the side, the contractor should state that the usual allowance of 6-inch and 9-inch length cuts be included for use in piers and other narrow places, so as to reduce the cutting of tile on the job to a minimum; also, enough half and full closures should be ordered for use at window and door openings. See Fig. 59 and Hollow Tile Problem on opposite page. When it comes to the case of the 12" × 12" tile, it is an easy matter for bricklayers to split off one or more cells to get the proper shapes for closures, but the usual allowance of half-lengths should be ordered. Enough 1-inch tile slabs should be included for use in leveling up the wall for joist bearings.
Tile is calculated in terms of pieces, and to arrive at the number required, use the same square feet dimensions you would for common brick backing and multiply by the proper one of the following coefficients:
Coefficients for Tile Quantities
| Dimensions of Tile Face |
Coefficient |
| 4" × 12' | 2.6 |
| 5" × 12' | 2.15 |
| 12" × 12" | 0.94 |
As the face brick is bonded to the tile backing by a double header bonding course, as shown on page 25, the amount of tile will have to be reduced accordingly. For instance, if 12" × 12" tile are used, the bonding course occurs every sixth course and one-sixth of the tile should be deducted, but at the same time, there must be added brick-size hollow tile at the rate of 12 to every 20 square feet of wall surface for use behind the stretchers in the bonding courses.
Or, if 5" × 12" tile are used, the bonding course occurs every fifth course and one-fifth of the tile should be deducted, and brick-size hollow tile at the rate of 12 to every 16 square feet of wall surface should be added for use behind the stretchers in the bonding courses. When the backing is 8 inches thick, an additional course of brick-size tile should be calculated behind every bonding course. If the brick-size tile cannot be obtained in the local market, an equal number of common brick will answer the purpose just as well. Two to three per cent should be added to all tile quantities calculated, to provide for waste.
In giving the following examples of estimating quantities it is not meant to indicate that each wall of the house is necessarily to be estimated by itself, but simply to show the way of estimating any extent of wall. Except in very elaborate and diverse elevations, the best way is to figure on the total surface of the four sides in one operation. This is the more easily done as, generally speaking, opposite sides of the house are of like area.
Brick Problem
To find the number of standard size brick, face and common, laid in a sixth course Common Bond with a 3/8-inch joint, for an 8-inch gable wall, 25 feet wide and 18 feet high from grade to eaves and thence to ridgepole 12 feet. The 12-inch basement wall is 71/2 feet high, 4% feet being below grade. There are 4 windows each requiring an opening of 3'-6" × 5'-2" and 1 window requiring an opening of 2'-6" × 4'-2". See window sizes page 22. The basement windows being less than 10 square feet are disregarded.
Face Brick
| First find the area in sq. ft. for face brick: | |
| Rectangle of wall 18' × 25' = | 450 sq. ft. |
| Gable triangle 12' × 25' = 300 - 2 = | 150 sq. ft. |
| Total area | 600 sq. ft. |
| Deduct the 5 window openings, thus: | |
| 4 × 3'-6" × 5'-2" = 721/3 sq. ft. | |
| 1 × 2'-6" × 4'-2" = 105/12 sq. ft. | |
| Window openings to be deducted | 83 sq. ft. |
| Total area to be covered with face brick | 517 sq. ft. |
| By Table 1, it takes 6.5 standard size face brick per sq. ft. for Running |
|
| Bond with a 3/8" joint. | |
| Hence, 517 × 6.5 = | 3,360 |
| Add 162/3% as per Table 2 | 560 |
| Number of face brick required | 3,920 |
| Total of face brick to be ordered | 4,000 |
Common Brick
| The common brick backing takes the same number as face brick, except that we deduct the 162/3% added to the face brick quantity as per Table 2. Hence, the number of common brick for backing is 3,360 - 560 = |
2,800 |
| As the wall from grade to first floor is three brick thick, the same as the foundation wall, it requires two tiers of common brick and, therefore, an additional tier must be figured in. Hence, 25' × 3' or 75 sq. ft. at 6.5 per sq. ft. = |
488 |
| The 4'-6" of foundation wall, being three brick thick, gives us 25' × 4'-6" × 3 or 388 sq. ft. to figure on. Hence, common brick for foundation is 388 × 6.5 = |
2,197 |
| Total common brick required | 5,485 |
| Total common brick to be ordered | 5,500 |
Hollow Tile Problem
By referring to pages 25 and 26, it will be seen that four courses of brick with a 3/8-inch joint equal in height two 5" × 12" tile, so that, in our present example, if we wish to use the 3/8-inch joint, we shall have to introduce our bonding course of brick every fifth instead of every sixth course. This would also naturally involve a slight change in the number of face brick required. That is, instead of adding 162/3% or we should have to add 20% or 1/5 to the number required for Running Bond, in order to get the right number for fifth course Common Bond and, in consequence, we subtract 20% or one fifth from the backing tile wanted. With these changes understood, our problem for a hollow tile backing for the gable wall will work out as follows:
If the hollow tile backing is started at grade, the tile and face brick area will be the same. But as, in the present case, we start the tile backing from the first floor, we subtract the area of the wall from grade to first floor or 25' × 3' = 75', and get 517 - 75 or 442 sq. ft. to be backed with tile.
The closures for horizontal tile are figured separately. A full and a half closure are respectively 12 and 6 inches in length and amount to about one foot in height, and hence cover an area of 3/4 sq. ft. on each side or 11/2 sq. ft. on both sides of the opening. As the height of our five window openings is approximately 25 feet, we have 25 × 11/2 = 371/2 sq. ft. to be deducted from area of regular tile surface, giving 442 - 371/2 or 4041/2 sq. ft.
| As per coefficient table, page 106, we have 404.5 × 2.15 = |
870 |
| Deduct 1/5 of tile for brick bond | 174 |
| 696 | |
| Add 3% for wastage or | 21 |
| Total number of tile to be ordered | 717 |
| Requiring 4 closures, 2 full and 2 half, for each foot of height (both sides), we need 25 × 4 or 100 closures |
|
| Add 3% for wastage or 3 | |
| Total number of closures needed | 103 |
| Order 52 of each size. | |
| Brick-size tile, 12 to every 16 sq. ft. >needed. Hence, 442 ÷ 16 gives about 28, and 12 × 28 = |
336 |
| Add 3% for wastage or | 10 |
| Total brick-size tile to be ordered | 346 |
Estimating Labor Required
The usual method of estimating the labor bill for brickwork or tile is to reduce it to the amount per thousand brick or tile placed, which not only covers the bricklayers' time, but the mortar, the necessary labor for mixing it, and the labor tending the bricklayers. This, of course, varies in different localities and with the different kinds of brick or tile, mortar, and joints. The contractor is urged to keep an accurate record of the number of brick or tile laid per day, the amount of mortar of various kinds used, and the number of bricklayers for which one laborer is necessary, so that he may determine for himself, from the total, the unit costs per thousand for placing brick or tile according to different specifications.
It must be carefully noted that such items as arches, piers, panels, special bond patterns, etc., require additional time for execution, depending upon their nature. The contractor will have to be guided by his own experiences in making allowances for the additional labor necessary for this work.
It is difficult to estimate the labor required for building a fireplace, due to the variety of designs and the necessary amount of cutting and fitting required. Therefore many masons estimate this work at so much per fireplace or at a unit price per thousand brick. It may be said that a bricklayer should lay the face of a fireplace 5 to 6 feet wide and 4 to 5 feet high in ten hours, and the fire brick lining in from 4 to 6 hours. It will take about 4 hours' time to lay the entire hearth. One-half hour of laborer's time should be allowed for every hour of bricklayers' time.
The cost of cleaning and pointing face brickwork will vary with the kind of brick to be cleaned, as it is easier to clean brick with a smooth surface than with a rough texture. An experienced man should clean 95 to 100 smooth brick or 75 to 80 rough brick per hour.
For one-half inch plaster coating, composed of one part Portland cement to two parts sand, 2 bags Portland cement and 4 cubic feet of sand will be required to cover one square, that is, 100 sq. ft. of wall surface, and it will require one-half hour of laborer's time for mixing. An experienced workman and helper should cover from 40 to 45 sq. ft. of surface per hour.
For a coating either of hot asphalt or of pitch, to be well applied with a heavy mop, approximately 200 pounds of material and a half day for two men will be required to cover 10 squares of wall surface. About one gallon of creosote sizing would be required per square, with only one-half to a quarter as much labor as for the waterproofing.
Handling of Materials
The storage space for all materials should be convenient to the building, and where the team can reach it so that rehandling may be avoided.
When face brick are delivered on the job, they should be immediately compared with the sample, previously selected, for color, size, and quality, to prevent any misunderstanding later when they are laid in the wall. If shipped by freight, they should be examined before being unloaded from the car. Face brick should be stacked in neat piles, laid either on edge, face up and protected with straw, or on their sides in such a way as to protect the faces. Laborers, in carrying face brick to the mason, should place them face up for the convenience of handling.
Except on large jobs, common brick are not usually stacked. They are dumped in a pile which makes it easier to wet them down thoroughly as explained later. Hollow tile should be stacked in neat piles to prevent undue breakage, each size and shape being piled separately.
Lump lime should always be stored in a covered box to keep it dry. This box should have a hinged opening on one side, at the bottom, from which the lime may be conveniently removed. Lump lime should be slaked at least a week before used to allow for thorough hydration and cooling. Hydrated lime and cement should be carefully protected from the weather by stacking the sacks on planks laid on the ground and by a covering of planks and tarpaulin.
The sand pile should be located as near the mortar box as possible for convenience in handling. In case the sand needs screening, an the sand pile should be located at such a distance from the mortar box that when the sand is thrown through the sieve, it will form a pile adjacent to the mortar box.
All brick, especially the softer grades of common brick, should be thoroughly wetted just before being placed in the wall, but not made so wet as to cause sliding on the mortar. The object of this wetting is to prevent the bricks from absorbing moisture from the mortar which must be allowed to dry slowly so as to obtain a good bond. If they are laid dry, the - 109 - bricks will quickly take up a large amount of water from the mortar, preventing proper setting and adhesion. Water increases the weight of brick and consequently the labor of handling, so that some workmen are inclined to lay them dry. This should not be allowed except in freezing weather, when the conditions require quicker setting. Good mortar bond is essential to a good wall.
Work Done in Cold Weather
In latitudes where the winter temperature is prevailingly below freezing, all material for mortar, including water, should be heated. If this is done, the mortar will take its initial set before it freezes and no damage will result. In extremely cold weather, added precautions should be taken in case of footings by protecting them with manure. The following suggestions will be found useful for cold weather work.
When being laid the brick should be thoroughly dry; and if possible warmed. No bricks with ice on them should be laid in the wall, and cement or cement-lime mortar should be used to get quick setting. For heating sand and gravel, a corrugated sheet metal culvert, about 20 inches in diameter and about 10 feet long, may be used. A wood fire is built in the ends of the pipe over which the sand and gravel are piled. This easy and simple method will melt all frozen lumps in the material and dry out the resulting moisture.
Where city water pressure is available, the water may be heated in a coil attached to the main and large enough to have a fire built in the center, a very simple and efficient method which any plumber can easily install. Place a sheet-iron guard around the coil to conserve the heat. This equipment proves very satisfactory, as it warms the water as fast as it is drawn off through the hose. The entire installation may be found on the market at a comparatively small cost. Without such an arrangement the water may be heated in an ordinary iron kettle over a wood fire. Water should never be heated to the boiling point, as too high a temperature will injure the setting properties of the mortar.
A temperature of about 165 degrees, or the same as generally required for household uses, is best.
If the above conditions are met, brickwork may be continued practically throughout the entire winter, except only so far as the comfort of the workmen dictates. They will usually quit at about 20 degrees above zero, depending somewhat upon other weather conditions. If it is not too windy, they will work outside in a lower temperature than when it is very windy. A shelter, however, may very easily be constructed for the workmen by nailing a few 2" × 4" scantlings upright to the scaffolding with another 2" × 4" nailed along the top as a support for a tarpaulin. A salamander behind this shelter will make it quite comfortable for the workmen as well as help the mortar to set. As the use of wood in the salamander makes a too intense and irregular heat, besides giving off more or less smoke, coke is recommended. The amount of coke required on an ordinary job is so small as to be almost negligible.
The wall at any one point should not be carried very high in one day. It is better to work around the entire building a few feet at a time rather than to work on one side and carry the wall six or more feet high. Walls thus erected are apt to get out of plumb from the alternating effect of the night cold and the day sun.
As soon as the floor joists of any story are set in place and floored, the window and door openings of the floor below should be tightly closed, either by the permanent sash or by temporary boarding or building paper, so that salamanders may be placed inside to dry out the building thoroughly. Once a day the building should be aired.
If the above suggestions are followed, there is no reason why brickwork should not be continued through the average winter months. The extra work accomplished during the usually dull season is worth more to the contractor than the trouble he has taken or the additional cost of labor.
Angle Iron. A structural piece of steel in the form of a 90° angle used in certain situations to sustain brickwork.
Backing. The part of the wall behind the face brick.
Bat. Any part of a brick intentionally or accidentally broken off.
Bed. The horizontal surface on which the bricks of the wall lie in courses. Also, the mortar on which the brick rest.
Bed Joint. A joint between two horizontal courses of brick.
Belt Course. A horizontal course of brick or other material usually projecting, and generally in line with window sills or heads.
Bench-Mark. A well defined mark, accurately established, in a protected location on some immovable object, as a point of reference.
Bond. The overlapping of brick in various ways so as to give both longitudinal and transverse strength to the wall, and at the same time produce a pleasing appearance.
Breaking Joint. The placing of brick so that no two vertical or head joints come immediately over one another.
Buttered Joint. A very thin mortar joint made by scraping a small quantity of mortar with the trowel on all edges of the brick and laying it without the usual mortar bed.
Cell. One of the hollow spaces in building tile.
Centering. The temporary frame or template on which an arch is turned.
Chase. A vertical recess on the inside face of a wall formed by omitting one or more bricks in each course to accommodate plumbing, heating, or other pipes.
Chimney Breast. The projection on the interior or exterior face of a wall caused by fireplace or flues.
Closure. A quarter or three-quarter brick to close, when required, the end of a course, as distinguished from a half-brick. This term equally applies to tile.
Coping. A row of brick, usually projecting, used to cap or finish the top of a wall and protect it from the weather. It is usually laid up in very rich Portland cement mortar with tooled joints.
Corbel. One or more courses of brick projecting from the wall to form a support.
Course. A horizontal row of brick in a wall.
Culling. Sorting brick for size, color, and quality.
Culls. The brick rejected in culling.
Diaper. Any continuous pattern in brickwork of which the various bonds are examples. It is usually applied however, to diamond or other diagonal patterns.
Edge-set. A brick set on its narrow instead of on its flat side.
Efflorescence. The deposition of a white powder or crust on the surface of brickwork, due to soluble salts usually in the mortar but sometimes in the brick, and, drawn out with the moisture by the sun, left as a deposit on the surface. Brick clays containing these salts are now cured by using a carbonate of barium. Against mortar efflorescence care should be taken to protect all brickwork at eaves and sill courses from excessive moisture. Also Whitewash or Whitewashing.
Face Brick. A well-burned brick, especially prepared, selected, and handled to secure attractive appearance in the face of a wall, as distinguished from common brick as used for backing or other structural work.
Face. The long, narrow side of a brick, specially treated in the manufacture of face brick to produce certain color tones and textures.
Fire Stop. A projection of brickwork on the walls between the joists to prevent the spread of fire or vermin.
Flat Stretcher Course. A course of stretchers set on edge and exposing their flat sides on the surface of the wall. Frequently done with brick finished for the purpose on the flat side, such as enameled or glazed brick.
Flue. A passage in a chimney especially for the exit of smoke and gases, one or more of which may be enclosed in the same chimney.
Flue Lining. A smooth one-celled hollow tile for protecting flues.
Footing. The broadened base of a foundation wall, or other super-structure.
Green Brickwork. Brickwork in which the mortar has not yet set.
Grout. Rich mortar made very thin so that it will readily run into the joints of brickwork and fill them.
Header. A brick laid on its flat side across the thickness of the wall, so as to show the end of the brick on the surface of the wall.
- 111 -Header Course. A course composed entirely of headers.
Head Joint. A joint between the ends of two bricks in the same course. Also Vertical Joint.
Hearth. That portion of a fireplace level with the floor, upon which the fire is built. The rear portion extending into the fire opening is known as the back hearth.
Lead. A part of the wall at the corners, or elsewhere when needed, built in advance of the rest of the wall as a guide to which the line is attached.
Lime Putty. Slaked lime in a soft puttylike condition before sand or cement is added.
Line. The string stretched taut from lead to lead as a guide for laying the top edge of a brick course.
Lintel. A horizontal support for brickwork over an opening.
Mantel. A shelf projecting beyond the chimney breast above the fireplace opening.
Nogging. A filling of brick between the roof rafters from wall plate to roof boards for the purpose of making the building wind-tight.
Pointing. Inserting mortar into the joints after the brickwork is completed, in order to correct defects left in the progress of the work.
Quoins. Projecting courses of brick at the corners of buildings as ornamental features.
Racking. Laying the end of the wall with a series of steps so that when work is resumed, the bond can be easily continued. More convenient and structurally better than toothing.
Reveal. The vertical side of a window or door opening from face of wall to frame.
Rowlock Course. A course of headers laid on the edge instead of on the flat side of the brick as usual.
Salmon Brick. The softer brick of the kiln suitable for places protected from outside exposure or where great crushing strength is not required.
Selects. The bricks accepted as the best after culling.
Shove Joint. A vertical joint filled by shoving the brick, when it is being laid in the bed of mortar, against the next brick. Also Shoved Joint.
Skewback. In brickwork, a brick or stone cut to make an inclined surface for receiving thrust or pressure, as of an arch.
Slush Joint. A vertical joint filled by throwing mortar in with the trowel after the bricks are laid. Also Slushed Joint.
Smoke Chamber. The space in a fireplace immediately above the throat, where the smoke gathers before passing into the flue, and narrowed by corbeling to the size of the flue lining above. Also Smoke Cavern.
Soldier Course. A course of stretchers set on end with the face showing on the wall surface.
Splay. A slope or bevel, particularly at the sides of a window or door.
Story Pole. A pole on which the height from joist to joist, as well as all intermediate openings, brick courses, etc., is indicated.
Stretcher. A brick laid on its flat side so as to show its face on the surface of the wall.
Template. Any form or pattern, such as centering, over which brickwork may be formed.
Thickness of Wall. The thickness of a wall stated in terms of brick, inches, or tiers, thus:
| In Number of Brick. |
In Inches. | In Tiers. | |
| One | brick | 4" | 1 tier |
| Two | " | 8" or 9" | 2 tiers |
| Three | " | 12" or 13" | 3 tiers |
| Four | " | 16" or 17" | 4 tiers |
Throat. An opening at the top of a fireplace through which the smoke passes to the smoke chamber and chimney.
Tier. One of the four-inch, or one-brick, layers in the thickness of a wall. (Gilbreth).
Toothing. The method of building the end of a wall so that the end stretcher of every alternate course projects one-half its length, against which another wall may be built.
Toothing-in. Joining a new wall to an old toothed wall.
Trimmer Arch. A brick arch built in front of and below a fireplace opening to support the hearth, abutting on the fireplace foundation and thrusting against the header joist.
Tuck-pointing. The filling in of joints in old brickwork with fresh mortar, usually cement.
Vertical Joint. Same as Head Joint.
Washing Down. Cleaning the surface of the brick wall, after it is completed and pointed, with a mild solution of muriatic acid.
Water Table. A slight projection of the lower courses of brickwork at the base of a building.
Webb. The thin wall bounding and separating the cells in hollow tile.
Whitewashing, Whitewash. See Efflorescence.
Wind Shelf. The ledge back of the damper at the bottom of the smoke cavern.
Withe. A partition between two flues in the same chimney.
| Additional copies of plans, etc. | 41 |
| Adobe, first brick made | 5 |
| in America | 7 |
| Aim of this Manual | 5 |
| America, brick manufacture and use in | 7 |
| American Bond | 33 |
| American Face Brick Association | 104 |
| Anchors, for joist | 19 |
| for roof plate | 20 |
| Angle Irons, use of | 23 |
| Angles in wall construction | 21-22 |
| best method for | 22 |
| Arches, face brick | 23 |
| Architectural Symbols table of | 40 |
| Asbestos Shingles | 37-38 |
| Ash Chute for hearth | 30 |
| Ash Pit for fireplace | 18 |
| Asphalt for waterproofing | 18, 108 |
| Asphalt Shingles | 37-38 |
| Babylonian origin of brick | 5 |
| Backing, common brick | 15, 19, 105 |
| hollow tile | 15, 25, 106 |
| Basket Weave Pattern | 35 |
| Bats, care in using | 33 |
| Bays, laying corners of | 21 |
| Beauty of House, economic value | 11 |
| Bill of Materials, see Quantity Survey | |
| Bonding, face brick to common | 18-19 |
| face brick to frame | 27 |
| face brick to hollow tile | 26 |
| in foundation walls | 17 |
| Bonds, see Face Brick Bonds | |
| Brick, burning of | 7 |
| common, see Common Brick | |
| face, see Face Brick | |
| manufacture and use in America | 7 |
| method of laying | 17 |
| on edge or flat | 31 |
| per square foot, table | 104 |
| story of | 5 |
| treatment for color | 7 |
| Brickmaking, ancient and modern | 6-7 |
| Brick Veneer, see Face Brick Veneer | |
| Brickwork, extent of ancient use | 5-6 |
| in England and America | 6-7 |
| in Middle Ages | 6 |
| mortar joints used in | 35 |
| strength and rigidity of | 33 |
| Builder, opportunity for the | 8 |
| Building a Home, importance of | 10 |
| Buttered Joints | 19, 25, 35 |
| Casement Windows | 23 |
| Cement, for waterproofing | 18, 108 |
| handling | 108 |
| in mortar | 36, 104 |
| Cement-lime Mortar | 36, 104 |
| Cement Plaster, when used for flues | 21 |
| when used for waterproofing | 18 |
| Chimneys, interior and exterior | 20, 21 |
| with hollow tile construction | 26 |
| with veneer construction | 27 |
| China | 6 |
| Clays in brickmaking | 7 |
| Cleaning down wall | 24, 26 |
| labor for | 108 |
| Closing in building | 109 |
| Closures, brick | 34 |
| hollow tile | 25, 106, 107 |
| Coefficients for tile, table | 106 |
| Coke for salamanders | 109 |
| Cold Weather, work in | 109 |
| Color Effects, in brick wall | 8 |
| Comfort and Health, in brick house | 11 |
| Common Bond | 33 |
| Common Brick, compared with face | 16 |
| for backing | 15, 19, 105 |
| handling | 108 |
| hard-burned | 6, 17 |
| in place of tile | 106 |
| quantities required | 105, 107 |
| selected | 16 |
| wetting before use | 108 |
| Comparative Costs, in percentages | 12 |
| Concave Mortar Joint | 35 |
| Concealed Bond | 19 |
| Concrete, for footings | 17 |
| for step forms, path borders, etc. | 31 |
| Convex Mortar Joint | 35 |
| Copies, plans and specifications | 41 |
| Corbeling, between joists | 19-20 |
| for chimney support | 18 |
| in fireplaces | 30 |
| Corners of Wall, not right-angled | 21-22 |
| Costs, initial and final | 9, 12 |
| getting a unit of | 108 |
| percentage differences | 12 |
| Cradle of human civilization | 5 |
| Creosote in damp proofing | 18 |
| Dampness, how to prevent | 15 |
| Dean & Dean, architects | 40 |
| Depreciation, in value of house | 10 |
| Diamond Patterns | 34 |
| Door Frame Sizes, table of | 23 |
| Door Sills, in brick construction | 22 |
| in hollow tile construction | 26 |
| in veneer construction | 28 |
| Double Header Bond | 19, 25 |
| Drains, at base of foundation walls | 17 |
| Drying Brick, before setting in kiln | 7 |
| Drying out building | 109 |
| Dry-press Brick | 7 |
| Economic merits of face brick | 9 |
| Economic value of beauty | 11 |
| Effect of bond and mortar joint | 9 |
| Efflorescence | 15 |
| Egypt, brickmaking in | 6 |
| England, brickwork in | 6 |
| English and English Cross Bond | 33-34 |
| English Country Houses | 6 |
| Estimating, amount of common brick | 105 |
| amount of face brick | 104 |
| amount of hollow tile | 106 |
| Euphrates Valley | 5 |
| Face Brick, arches | 23 |
| artistic possibilities of | 9, 36 |
| bond or pattern in | 9 |
| bonding to common | 18-19 |
| bonding to frame | 27 |
| bonding to tile | 26 |
| bonds | 33-35 |
| care in making and handling | 16 |
| color and texture | 7-8 |
| handling on the job | 108 |
| inspection of | 108 |
| pre-eminent merits of | 9 |
| quantities required | 104, 107 |
| standard size of | 104 |
| veneer on old frame | 16, 27 |
| wastage | 105 |
| Face Brick Construction, comfort of | 11 |
| economy of | 9, 12, 38 |
| fire-safety of | 38 |
| solid | 16,18 |
| types of wall | 15 |
| Face Brick Veneer Construction | 15, 26, 28 |
| on old frame houses, etc. | 16, 27, 28 |
| Fire Brick, in fireplaces | 30 |
| Fireplaces, construction of | 29 |
| damper, flue, hearth | 30 |
| designs | 30-31 |
| foundation for | 18 |
| labor for | 108 |
| openings, table of | 29 |
| Fire Causes, interior and exterior, table | 38 |
| Fire Protection | 11 |
| fire-resistive shingles | 37-38 |
| interior protective measures | 38 |
| Fire Protection for the roof | 37 |
| to be increased | 37 |
| Fire Stops | 19 |
| check vermin | 20 |
| right and wrong practice | 20 |
| when not needed | 24-25 |
| Flat Brick Arches, construction of | 23 |
| Flemish Bond | 34 |
| Flemish influence in England | 6 |
| Floors and Walks of brick | 31 |
| Flues and Flue Linings | 21 |
| Flush-cut Mortar joint | 35 |
| Footings, for foundations | 17 |
| for veneer on old frame | 28 |
| Foundation Walls | 17 |
| waterproofing | 18 |
| Frame Construction, up-keep and depreciation | 10 |
| veneering old | 16-27-28 |
| weakness of | 15 |
| Frames, window and door | 22-23 |
| Freezing Weather, work in | 109 |
| Fundamentals of building | 5 |
| Furnace Flue Cleanout | 21 |
| Furring, kinds of | 24 |
| when, and when not, needed | 15, 24, 25 |
| Garden Walls, bond in | 34, 105 |
| of face brick | 32 |
| Gate Posts, face brick | 32 |
| General rule for brick quantities | 104 |
| Georges, The, days of | 6 |
| Gothic Epoch of building | 6 |
| Gravel, for wide mortar joints | 36 |
| Greek Crosses, seen in bonds | 34 |
| Green Brick | 7 |
| Green Brickwork, in wall | 18 |
| Grounds | 24 |
| Grouting of brick walks | 31 |
| Growing demand for brick building | 8 |
| Gypsum Board, as fire retardant | 38 |
| Handling Materials | 108 |
| Hearth, The | 30 |
| Henry VIII, times of | 6 |
| Herringbone Pattern | 35, 105 |
| Hollow or Vaulted Brick Wall | 24 |
| Hollow Tile, backing for face brick | 5, 15 |
| bonding to face brick | 26 |
| brick-size | 106 |
| closures | 25, 106, 107 |
| construction | 25, 26 |
| handling | 108 |
| methods of laying | 25 |
| quantities required | 106, 107 |
| reinforced lintel | 26 |
| sizes of | 25, 106 |
| "split furring" | 24 |
| table of sizes | 106 |
| wastage | 106 |
| Home-building, importance of | 10 |
| Homes, shortage of | 14 |
| Hydrated Lime | 37, 104 |
| Increasing Profits | 8, 28 |
| India | 6 |
| Insurance, saving on | 11 |
| Israel in Egypt | 5 |
| Joints, slushing of | 17, 19 |
| Joist Anchors, beveling ends of | 19 |
| Joslin, Arthur W., on the hollow wall | 24 |
| Juergens, Alfred, artist | 40 |
| Labor Required | 108 |
| Lath, where and how placed | 20 |
| Laying out work for brick | 23 |
| for hollow tile | 26 |
| Leads, laying up at corners | 17 |
| Lime, handling - 113 - | 108 |
| Lime, lump or hydrated | 36, 37, 104 |
| Lintels and Arches | 23 |
| Lumber | 13-14 |
| Magna Charta, days of | 6 |
| Maintenance or Upkeep | 10 |
| Mesopotamian Plain | 5 |
| Metal Wall Ties | 19, 27 |
| Mexico | 7 |
| Modern Brick Making | 7 |
| Mortar Colors | 36 |
| Mortar Joints | 35 |
| Mortars, mixing and tempering | 36-37 |
| table of mixes | 104 |
| Muriatic Acid, for cleaning walls | 24 |
| Nail Holds, for furring | 20 |
| Nails, as anchors or ties | 24, 27, 28 |
| National Board of Fire Underwriters | 38 |
| Nebuchadnezzar | 5 |
| Nogging, where, and where not, needed | 20 |
| Octagon or Splay brick | 21 |
| Offsets in chimneys | 21 |
| Openings | 22 |
| supports for | 23 |
| Origin of brickmaking | 5 |
| Ornamental Brickwork, outside | 30-32 |
| Patterns in brickwork | 34-35 |
| Paying Investments | 27 |
| Percentages, of brick added for bonds | 105 |
| of difference in costs | 12 |
| Pergola Posts, face brick | 31 |
| Persia | 6 |
| Peru | 7 |
| Pitch for waterproofing | 18, 108 |
| Plans and Specifications, prices | 40-41 |
| Plastering without furring | 24-25 |
| Pointing up wall | 24 |
| Porches, bond in walls of | 105 |
| of face brick on old buildings | 28 |
| Protection, of bricklayers in winter | 109 |
| of the day's work | 19 |
| Putty, lime | 37 |
| Quantities of Materials | 104, 107 |
| Quantity Survey | 40 |
| Queen Anne, days of | 6 |
| Raked Mortar Joint | 35 |
| Reinforcing, of pergola and gate posts | 32 |
| of tile lintels | 26 |
| Relieving Arches | 23 |
| Repp, Geo. W., architect | 17 |
| Reversal of Plans | 40 |
| Rodded Mortar Joint | 35 |
| Roman Brickwork | 6 |
| Roof, fire-resistive material for | 37 |
| point of danger in fire | 37 |
| Roof Plate Anchors | 20 |
| Rowlock Courses | 18, 35 |
| effect on quantities | 105 |
| in arches | 23 |
| Running Bond | 33 |
| Salamanders, use of | 109 |
| Sand, handling | 108 |
| for mortars | 36 |
| Sand-mold Brick | 7 |
| Sargon of Akkad | 5 |
| Scaffolding | 18 |
| Scribing Bead | 23 |
| Segmental Face Brick Arches | 23 |
| Semi-circular Face Brick Arches | 23 |
| Sentimental Value of the house | 11 |
| Sewage Disposal | 40 |
| Shingle Tile | 37-38 |
| Sills, window and door | 22 |
| Sizes, common brick | 105 |
| hollow tile | 25, 106 |
| standard face brick | 104 |
| Skewbacks, in arch construction | 23 |
| Slaking Lime | 37 |
| Slate Shingles | 37-38 |
| Slop-mold Brick | 7 |
| Slushing Joints | 17, 19 |
| Soldier Courses | 18, 35 |
| effect on quantities | 105 |
| Solid Face Brick Construction | 15, 18 |
| Spanish in Mexico and Peru, the | 7 |
| Specifications and Plans | 40 |
| Splay or Octagon Brick | 21 |
| Staff Bead or Brick Mold | 23 |
| Steel Lintels | 23, 28 |
| Steps, brick | 31 |
| Stiff-mud Brick | 7 |
| Storage Space | 108 |
| Store Fronts Veneered | 28 |
| Stretcher Bond | 33 |
| Striking Joints | 17, 19 |
| Stripped Mortar Joint | 35 |
| Struck Joint, the | 35 |
| when to avoid | 19 |
| Structural Merits of face brick | 9 |
| Stucco, veneering old | 27 |
| weakness of | 16 |
| Tables | |
| Architectural Symbols | 40 |
| Coefficients for Tile Quantities | 106 |
| Comparative Costs | 12 |
| Door Frame Sizes | 23 |
| Fire Causes | 38 |
| Fireplace Openings | 29 |
| Flue Linings | 21 |
| Mortar Mixes for 1000 Brick | 104 |
| Mortar Mixes for 1000 Tile | 104 |
| Number Brick per Square Foot | 104 |
| Percentages Added for Bonds | 105 |
| Tile Sizes | 106 |
| Window Frame Sizes | 22 |
| Tar, for waterproofing | 18, 108 |
| Tempering Mortars | 37 |
| Terra Cotta Flue Linings | 21 |
| Texture of brick | 8 |
| Thickness of walls | 18, 111 |
| Tower of Babel | 5 |
| Upkeep, see Maintenance | |
| Value of Face Brick House, artistic | 11, 16 |
| economic | 9, 11 |
| selling or renting | 11 |
| sentimental | 11 |
| Vaulted or Hollow Brick Wall | 24 |
| Veneering, see Face Brick Veneer | |
| Vermin Stops, see Fire Stops | |
| Vitruvius on elements in architecture | 5, 9 |
| V-tooled Mortar Joint | 35 |
| Walks and Floors of brick | 31 |
| estimating brick for | 105 |
| Walls, hollow tile | 15, 25 |
| methods of laying 12" | 20 |
| solid brick | 15, 18 |
| veneer | 15, 26 |
| when 8" or 12" | 18 |
| Washing down, see Cleaning down wall | |
| Wastage, of brick | 105 |
| of hollow tile | 106 |
| Wastes of War | 13 |
| Waterproofing Foundation Walls | 18 |
| labor for | 108 |
| Water Tables | 18 |
| Weathered Mortar Joint | 35 |
| Wetting Common Brick | 108 |
| Wide Choice, in color and texture | 8 |
| Wide Mortar Joint, how secured | 36 |
| Window Frames and Sash | 22 |
| table of sizes | 22 |
| Window Sills, in brick construction | 22 |
| in hollow tile construction | 26 |
| in veneer construction | 28 |
| Wire-cut Brick | 7 |
| Withes in chimneys | 21 |
| Wood Shingles | 37 |
| Work in cold weather | 109 |
LIST OF ILLUSTRATIONS
HALF-TONES
| Page | |
| Frontispiece | 4 |
| Brickwork of Old Persian Tomb | 6 |
| Carpenters' Hall, Philadelphia | 7 |
| Face Brick Bungalow, Evanston, Ill. | 10 |
| Face Brick Bank, Detroit, Mich. | 10 |
| Face Brick Bungalow, Windsor Park, Ill. | 11 |
| Face Brick Library, Coatsville, Ind. | 11 |
| Face Brick Store Front, Birmingham, Ala. | 12 |
| Face Brick School, Highland Park, Ill. | 13 |
| Face Brick Store Front, St. Louis, Mo. | 13 |
| Face Brick House, Buffalo, N. Y. | 14 |
| Face Brick Bungalow, Atlanta, Ga. | 15 |
| Veneering over Old Frame | 16 |
ZINCS
| Page | |
| Brickmaking in Egypt | 6 |
| Brick Footing | 17 |
| Types of Basement Walls | 18 |
| Concealed Bond | 19 |
| Metal Wall Ties | 19 |
| Good and Bad Joist Anchors | 19 |
| True Corbeling between Joists | 19 |
| False Corbeling between joists | 20 |
| Rafters and Roof Plate | 20 |
| Chimney Height | 21 |
| Chimney Withes | 21 |
| Chimney Offset | 21 |
| Outside Angle Corners | 21 |
| Obtuse Angle Turns | 22 |
| Acute Angle Turns | 22 |
| The Solid Brick Wall | 22 |
| Brick Arches | 23 |
| Hollow or Vaulted Brick Wall | 24 |
| Face Brick on Hollow Tile | 25 |
| Hollow Tile and Steel Lintels | 26 |
| Veneer Construction | 27 |
| Nail Wall Ties | 27 |
| Veneering Old Frame | 28 |
| Perspective of Fireplace | 29 |
| Cross Section of Fireplace | 29 |
| Hearth Edge Set | 30 |
| Hearth Flat Set | 30 |
| Fireplace Designs | 30 |
| Steps, End Set Treads | 31 |
| Flat Set Treads | 31 |
| Edge Set Treads | 31 |
| Pergola Post | 31 |
| Fireplace Design | 31 |
| Porch or Pergola post | 32 |
| Gate Post | 32 |
| Bonding Strength | 33 |
| Common or American Bond | 33 |
| English Bond | 33 |
| English Cross or Dutch Bond | 34 |
| Flemish Bond | 34 |
| Garden Wall Bond | 34 |
| Diamond Bond Patterns | 34 |
| Checkerboard Pattern | 35 |
| Basket Weave Pattern | 35 |
| Herringbone Pattern | 35 |
| Mortar Joints | 35 |
| Pergola | 41 |
| Color Plates | 42-102 |
| Brick and Mortar Joint | 104 |
| Stock Tile Shapes | 106 |
| JOHN H. BLACK, President B. W. BALLOU, 2nd Vice President |
S. C. MARTIN, 1st Vice President R. D. T. HOLLOWELL, Sec.-Treas. |
Directors
| B. W. BALLOU Kansas Buff Brick & Mfg. Co. Kansas City, Mo. |
T. P. CUTHBERT Fallston Fire Clay Company Pittsburgh, Pa. |
| GEORGE A. BASS Hydraulic-Press Brick Company St. Louis, Mo. |
W. H. HOAGLAND Claycraft Mining and Brick Company Columbus, O. |
| H. R. BEEGLE Beaver Clay Manufacturing Company New Galilee, Pa. |
B. MIFFLIN HOOD Legg Brick Company Atlanta, Ga. |
| P. B. BELDEN The Belden Brick Company Canton, O. |
G. B. LUCKETT Crawfordsville Shale Brick Co. Crawfordsville, Ind. |
| J. H. BLACK Jewettville Clay Products Company Buffalo, N. Y. |
S. C. MARTIN Kittanning Brick & Fire Clay Co. Pittsburgh, Pa. |
| W. H. BRECHT Boone Brick, Tile & Paving Company Boone, Ia. |
D. H. MILLER Milton Brick Company New York, N. Y. |
| F. W. BUTTERWORTH Western Brick Company Danville, Ill. |
J. W. MOULDING Thomas Moulding Brick Company Chicago, Ill. |
| CHAS. C. STRATTON Alumina Shale Brick Company Bradford, Pa. |
|
Members.
| ALABAMA | |
| Alphons Custodis Chimney Const. Co. | Ragland |
| Birmingham Clay Products Co. | Birmingham |
| Stephenson, L. L. | Lovick |
| ARKANSAS | |
| Fort Smith Brick Co. | Fort Smith |
| GEORGIA | |
| Legg Brick Co. | Atlanta |
| IDAHO | |
| Burley Brick & Sand Co. | Burley |
| Idaho Pressed Brick Co. | Pocatello |
| ILLINOIS | |
| Acme Brick Co. | Danville |
| Alton Brick Co. | Alton |
| Barr Clay Co. | Streator |
| Decatur Brick Manufacturing Co. | Decatur |
| Hydraulic-Press Brick Co. | Chicago |
| Lacon Clay & Coal Co. | Lacon |
| Peoria Brick & Tile Co. | Peoria |
| Richards Brick Co. | Edwardsville |
| Southern Fire Brick & Clay Co. | Chicago |
| Streator Brick Co. | Streator |
| Western Brick Co. | Danville |
| IOWA | |
| Boone Brick, Tile & Paving Co. | Des Moines |
| Des Moines Clay Co. | Des Moines |
| Hydraulic-Press Brick Co. | Davenport |
| INDIANA- 115 - | |
| Adams Clay Products Co. | Martinsville |
| Brazil Clay Co. | Brazil |
| Brooklyn Brick Co. | Indianapolis |
| Crawfordsville Shale Brick Co. | Crawfordsville |
| Huntingburg Press Brick Co. | Huntingburg |
| Hydraulic-Press Brick Co. | Indianapolis |
| Poston Paving Brick Co. | Crawfordsville |
| Standard Brick Co. | Crawfordsville |
| Standard Brick Manufacturing Co. | Evansville |
| U. S. Brick Co. | Tell City |
| KANSAS | |
| Cherryvale Brick Co. | Cherryvale |
| Coffeyville Vit. Brick & Tile Co. | Coffeyville |
| V. V. V. Brick & Tile Co. | Neodesha |
| KENTUCKY | |
| Coral Ridge Clay Products Co. | Louisville |
| Sphar Brick Co. | Maysville |
| MICHIGAN | |
| Briggs Company, The | Lansing |
| MINNESOTA | |
| Hydraulic-Press Brick Co. | Minneapolis |
| Twin City Brick Co. | St. Paul |
| MISSISSIPPI | |
| Brookhaven Pressed Brick & Mfg. Co. | Brookhaven |
| MISSOURI | |
| Hydraulic-Press Brick Co. | Kansas City |
| Hydraulic-Press Brick Co. | St. Louis |
| Kansas Buff Brick & Mfg. Co. | Kansas City |
| NEW JERSEY | |
| Krantz Company, A. M. | Paterson |
| Upper Kittanning Brick Co. | Jersey City |
| NEW YORK | |
| Jewettville Clay Products Co. | Buffalo |
| NORTH CAROLINA | |
| Statesville Brick Co. | Statesville |
| OHIO | |
| Acme Brick Co. | Marietta |
| Alliance Brick Co. | Alliance |
| Belden Brick Co. | Canton |
| Claycraft Mining & Brick Co. | Columbus |
| Colonial Pressed Brick Co. | Mogadore |
| Duro Brick Mfg. Co. | Akron |
| Everhard Company, The | Massillon |
| Franklin Brick & Tile Co. | Columbus |
| Fultonham Texture Brick Co. | E. Fultonham |
| Hanover Brick Co. | Columbus |
| Hocking Valley Fire Clay Co. | Nelsonville |
| Hocking Valley Products Co. | Columbus |
| Hydraulic-Press Brick Co. | Cleveland |
| Hydraulic-Press Brick Co. | Roseville |
| Ironclay Brick Co. | Columbus |
| McArthur Brick Co. | McArthur |
| Marietta Shale Brick Co. | Marietta |
| Stark Brick Co. | Canton |
| Straitsville Impervious Brick Co. | New Straitsville |
| Toronto Fire Clay Co. | Toronto |
| Webster Brick Co. | Chillicothe |
| OKLAHOMA | |
| Muskogee Vitrified Brick Co. | Muskogee |
| Pawhuska Vit. Brick Si Tile Co. | Pawhuska |
| PENNSYLVANIA | |
| Alumina Shale Brick Co. | Bradford |
| Auburn Shale Brick Co. | Auburn |
| Bloomsburg Brick Co. | Bloomsburg |
| Beaver Clay Mfg. Co. | New Galilee |
| Bradford Pressed Brick Co. | Bradford |
| Darlington Brick & Mining Co. | Darlington |
| Darlington Clay Products Co. | Darlington |
| Fallston Fire Clay Co. | Pittsburgh |
| Ferro Brick Co. | Watsontown |
| Gloninger & Co. | Pittsburgh |
| Hydraulic-Press Brick Co. | Du Bois |
| Hydraulic-Press Brick Co. | Philadelphia |
| Kane Brick & Tile Co. | St. Marys |
| Keystone Clay Products Co. | Greensburg |
| Kittanning Brick & Fire Clay Co. | Pittsburgh |
| Kittanning Clay Mfg. Co. | Kittanning |
| Kittanning Clay Products Co. | Bradford |
| Kushequa Brick Co. | Kushequa |
| Latrobe Brick Co. | Latrobe |
| Mill Hall Brick Works | Lock Haven |
| Milton Brick Co. | Milton |
| Penn Brick Corporation | Bradford |
| Pittsburgh-Callery Brick Co. | Pittsburgh |
| Ridgway Brick Co. | Watsontown |
| Rochester Clay Products Co. | Rochester |
| Stuempfle's Sons, David | Williamsport |
| Vanport Brick Co. | Pittsburgh |
| Walker Brick Co., Hay | Pittsburgh |
| Walkers Mills Stone & Brick Co. | Pittsburgh |
| Watsontown Brick Co. | Watsontown |
| Williamsgrove Brick Co. | Bigler |
| Wynn & Starr Co. | Trafford |
| Yingling-Martin Brick Co. | Pittsburgh |
| SOUTH CAROLINA | |
| Sumter Brick Works | Sumter |
| TENNESSEE | |
| Bush & Company, W. G. | Nashville |
| Dixie Brick & Tile Co. | Puryear |
| Key-James Brick Co. | Alton Park |
| TEXAS | |
| Acme Brick Co. | Fort Worth |
| Elgin-Butler Brick & Tile Co. | Austin |
| Elgin-Standard Brick Mfg. Co. | Elgin |
| UTAH | |
| Ashton Fire Brick & Tile Co. | Ogden |
| Ogden Pressed Brick & Tile Co. | Ogden |
| Salt Lake Pressed Brick Co. | Salt Lake City |
| Utah Fire Clay Co. | Salt Lake City |
| WASHINGTON, D. C. | |
| Hydraulic-Press Brick Co. | Washington |
| G. C. Mars, Director of Service Department | |
Transcriber Notes
Images were relocated so as to not split paragraphs.
This eBook is for the use of anyone anywhere in the United States and most other parts of the world at no cost and with almost no restrictions whatsoever. You may copy it, give it away or re-use it under the terms of the Project Gutenberg License included with this eBook or online at www.gutenberg.org. If you are not located in the United States, you will have to check the laws of the country where you are located before using this eBook.